藤沢市花の木 中古戸建 神奈川県藤沢市花の木|5,780万円の中古一戸建て|センチュリー21富士ハウジング
| 価格 | 5,780万円値下がり ![]() |
||||
|---|---|---|---|---|---|
| 所在地 | 神奈川県藤沢市花の木
この地域周辺の物件を見る |
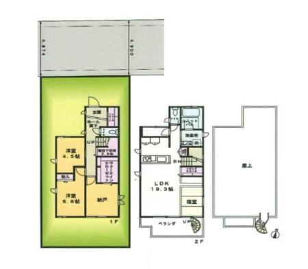
土地面積 | 98.02m² (29.65坪) | 建物面積 | 97.8m2 |
| 築年月 | 2018年9月築 | 間取り | 2SLDK (洋室19.3/洋室5.6/LDK4.5) | ||
| 交通 |
小田急江ノ島線 藤沢本町 徒歩8分
|
||||
| 特徴 |
|
|---|---|
| セールスコメント | 当店は湘南モールフィル1階にございます。お気軽にお立ち寄り下さいませ。 |
| 採光面 | 南 | 構造/階数 | 軽量鉄骨造/地上2階建 |
|---|---|---|---|
| 建ぺい率 | 60(%) | 容積率 | 200(%) |
| 駐車場 | 有 | 現況/引渡し | 居住中/相談 |
| 土地権利 | 所有権 | 私道負担面積 | - |
| 接道状況 | 接道: 北西 6.74m 公道 道路幅: 4.7m | 用途地域 |
第一種住居地域
|
| セットバック | - | 法令上の制限 | 準防火地域 |
| 地目 | 宅地 | 地勢 | |
| 建築確認番号 | 都市計画 | 市街化区域 | |
| 取引態様 | 仲介 | ||
| 情報更新日 | 2025年11月10日 | 次回更新日 | 2025年11月24日 |
| 小学校区 | () |
中学校区 | () |
|---|
| 価格 | 万円 | ||
|---|---|---|---|
| 年利率 | % |
||
| ボーナス払い | 返済年数 | ||
| 頭金 | 直接入力する | 万円 | |

毎月のご返済額 |
ボーナス(×年2回) |
物件価格5,780万円 |
![]() |
![]() |
藤沢市花の木
5780万円 |
【CENTURY21富士ハウジング取扱物件】軽量鉄骨造のお家。バーベキューやお子様のプール遊びも楽しめる水栓付の広々としたルーフバルコニー付、収納も豊富です。