茅ヶ崎市東海岸南4丁目 新築分譲住宅 1号棟 全2棟 神奈川県茅ヶ崎市東海岸南4丁目|7,380万円の新築一戸建て|センチュリー21富士ハウジング
| 価格 | 7,380万円 ![]() |
||||
|---|---|---|---|---|---|
| 所在地 | 神奈川県茅ヶ崎市東海岸南4丁目
この地域周辺の物件を見る |
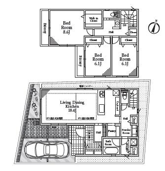
土地面積 | 106.12m² (32.1坪) | 建物面積 | 104.33m2 |
| 築年月 | 2025年10月築 | 間取り | 3LDK (LDK18.4/洋室8.6/洋室6.1/洋室6.1) | ||
| 交通 |
JR東海道本線 茅ケ崎 徒歩16分
JR相模線 茅ケ崎 徒歩16分 |
||||
| 特徴 |
|
|---|---|
| セールスコメント | センチュリー21富士ハウジング茅ヶ崎店は茅ヶ崎駅南口徒歩1分です |
| 採光面 | - | 構造/階数 | 木造/地上2階建 |
|---|---|---|---|
| 建ぺい率 | 50(%) | 容積率 | 100(%) |
| 駐車場 | 有 | 現況/引渡し | 新築/相談 |
| 土地権利 | 所有権 | 私道負担面積 | - |
| 接道状況 | 接道: 南西 公道 道路幅: 3.7m 接道: 北東 公道 道路幅: 4m |
用途地域 |
第一種低層住居専用地域
|
| セットバック | - | 法令上の制限 | 準防火地域 |
| 地目 | 宅地 | 地勢 | 平坦 |
| 建築確認番号 | 第25UDI1T建00667号 | 都市計画 | - |
| 取引態様 | 仲介 | ||
| 情報更新日 | 2025年11月04日 | 次回更新日 | 2025年11月18日 |
| 小学校区 | 茅ヶ崎市立東海岸小学校 (神奈川県茅ヶ崎市) 神奈川県茅ヶ崎市立東海岸小学校学区の他の物件を見る |
中学校区 | 第一中学校 (神奈川県茅ヶ崎市) 神奈川県茅ヶ崎市立第一中学校学区の他の物件を見る |
|---|
| 価格 | 万円 | ||
|---|---|---|---|
| 年利率 | % |
||
| ボーナス払い | 返済年数 | ||
| 頭金 | 直接入力する | 万円 | |

毎月のご返済額 |
ボーナス(×年2回) |
物件価格7,380万円 |
![]() |
![]() |
茅ヶ崎市東海岸南4丁目
7180万円〜7380万円 |
海風を感じる贅沢な暮らし
全居室6帖以上のゆったり空間
パントリー、ウォークインクローゼット付きで収納も充実
小・中学校へも徒歩10分以内で、子育て家族も安心