茅ヶ崎市矢畑2期 新築3号棟 全5棟 神奈川県茅ヶ崎市矢畑|4,699万円の新築一戸建て|センチュリー21富士ハウジング
| 価格 | 4,699万円 ![]() |
||||
|---|---|---|---|---|---|
| 所在地 | 神奈川県茅ヶ崎市矢畑
この地域周辺の物件を見る |
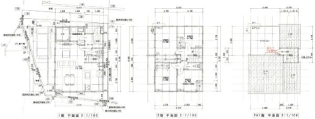
土地面積 | 107.63m² (32.55坪) | 建物面積 | 111.56m2 |
| 築年月 | 2026年1月築 | 間取り | 3SLDK (LDK21.1/洋室7.7/洋室4.2/洋室5/S5) | ||
| 交通 |
JR東海道本線 茅ケ崎 徒歩24分/バス7分 矢畑 停歩6分
JR相模線 茅ケ崎 徒歩24分/バス7分 矢畑 停歩6分 JR相模線 北茅ケ崎 徒歩20分/バス15分 陽ざし野 停歩4分 |
||||
| 特徴 |
|
|---|---|
| セールスコメント | 辻堂北口店はJR東海道線「辻堂」駅北口徒歩3分、オザワビル1階にございます。 |
| 採光面 | - | 構造/階数 | 木造/地上2階建 |
|---|---|---|---|
| 建ぺい率 | 60(%) | 容積率 | 180(%) |
| 駐車場 | 有 | 現況/引渡し | 建築中/相談 |
| 土地権利 | 所有権 | 私道負担面積 | - |
| 接道状況 | 接道: 北 公道 道路幅: 4.5m | 用途地域 |
第一種中高層住居専用地域
|
| セットバック | - | 法令上の制限 | 高度地区;宅地造成工事規制区域;準防火地域;高さ最高限度有;日影制限有 |
| 地目 | 宅地 | 地勢 | 平坦 |
| 建築確認番号 | 第25UDI1W建03796-2号 | 都市計画 | 市街化区域 |
| 取引態様 | 仲介 | ||
| 情報更新日 | 2026年01月10日 | 次回更新日 | 2026年01月24日 |
| 小学校区 | 茅ヶ崎市立鶴嶺小学校 (神奈川県茅ヶ崎市) 神奈川県茅ヶ崎市立鶴嶺小学校学区の他の物件を見る |
中学校区 | 鶴嶺中学校 (神奈川県茅ヶ崎市) 神奈川県茅ヶ崎市立鶴嶺中学校学区の他の物件を見る |
|---|
| 価格 | 万円 | ||
|---|---|---|---|
| 年利率 | % |
||
| ボーナス払い | 返済年数 | ||
| 頭金 | 直接入力する | 万円 | |

毎月のご返済額 |
ボーナス(×年2回) |
物件価格4,699万円 |
![]() |
![]() |
茅ヶ崎市矢畑
4699万円〜4999万円 |
穏やかな雰囲気が漂う閑静な住宅街、落ち着いた生活をしたい方におすすめです 明るく開放感のあるLDKは広々約21.1帖 大容量の収納スペース