藤沢市西俣野 中古戸建 神奈川県藤沢市西俣野|3,250万円の中古一戸建て|センチュリー21富士ハウジング
| 価格 | 3,250万円 ![]() |
||||
|---|---|---|---|---|---|
| 所在地 | 神奈川県藤沢市西俣野
この地域周辺の物件を見る |
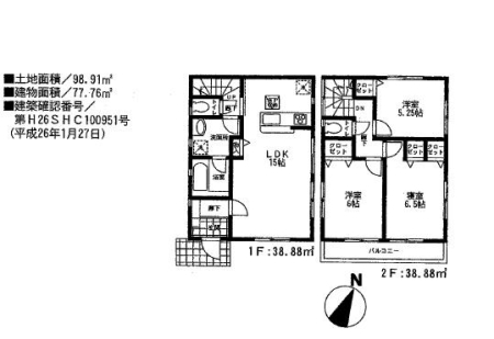
土地面積 | 98.91m² (29.92坪) | 建物面積 | 77.76m2 |
| 築年月 | 2014年5月築 | 間取り | 3LDK (LDK15/洋室6.5/洋室6/洋室5.25) | ||
| 交通 |
小田急江ノ島線 六会日大前 徒歩18分
|
||||
| 特徴 |
|
|---|---|
| セールスコメント | センチュリー21富士ハウジング藤沢店は藤沢駅北口徒歩3分、提携駐車場がございます |
| 採光面 | - | 構造/階数 | 木造/地上2階建 |
|---|---|---|---|
| 建ぺい率 | 40(%) | 容積率 | 80(%) |
| 駐車場 | 有 | 現況/引渡し | 空家/相談 |
| 土地権利 | 所有権 | 私道負担面積 | - |
| 接道状況 | 6.86m 道路幅: 4m | 用途地域 |
第一種低層住居専用地域
|
| セットバック | - | 法令上の制限 | 景観法 |
| 地目 | 宅地 | 地勢 | ひな段 |
| 建築確認番号 | 第H26SHC100951号 | 都市計画 | 市街化区域 |
| 取引態様 | 専任媒介 | ||
| 情報更新日 | 2026年01月08日 | 次回更新日 | 2026年01月22日 |
| 小学校区 | () |
中学校区 | () |
|---|
| 価格 | 万円 | ||
|---|---|---|---|
| 年利率 | % |
||
| ボーナス払い | 返済年数 | ||
| 頭金 | 直接入力する | 万円 | |

毎月のご返済額 |
ボーナス(×年2回) |
物件価格3,250万円 |
2014年築の戸建て 南東道路につき、日当たり良好の3LDK+P2台!亀井野小学校・六会中学校区!お気軽にお問い合わせください