茅ヶ崎市浜竹3丁目 新築分譲住宅 3号棟 全4棟 神奈川県茅ヶ崎市浜竹3丁目|6,980万円の新築一戸建て|センチュリー21富士ハウジング
| 価格 | 6,980万円 ![]() |
||||
|---|---|---|---|---|---|
| 所在地 | 神奈川県茅ヶ崎市浜竹3丁目
この地域周辺の物件を見る |
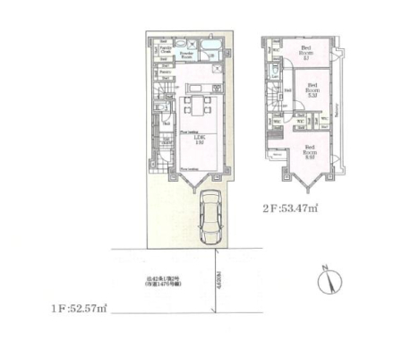
土地面積 | 108.68m² (32.87坪) | 建物面積 | 99.37m2 |
| 築年月 | 2025年12月築 | 間取り | 3LDK (LDK18.8/洋室6.9/洋室5.8/洋室5) | ||
| 交通 |
JR東海道本線 辻堂 徒歩9分
|
||||
| 特徴 |
|
|---|---|
| セールスコメント | センチュリー21富士ハウジング茅ヶ崎店は茅ヶ崎駅南口徒歩1分です |
| 採光面 | - | 構造/階数 | 木造/地上2階建 |
|---|---|---|---|
| 建ぺい率 | 60(%) | 容積率 | 150(%) |
| 駐車場 | 有 | 現況/引渡し | 新築/相談 |
| 土地権利 | 所有権 | 私道負担面積 | - |
| 接道状況 | 接道: 南 道路幅: 2.5m | 用途地域 |
第一種低層住居専用地域
|
| セットバック | - | 法令上の制限 | 準防火地域;高さ最高限度有;建物面積最低限度有 |
| 地目 | 宅地 | 地勢 | 平坦 |
| 建築確認番号 | 第KBI-SGM25-10-0405号 | 都市計画 | 市街化区域 |
| 取引態様 | 仲介 | ||
| 情報更新日 | 2026年01月10日 | 次回更新日 | 2026年01月24日 |
| 小学校区 | 茅ヶ崎市立松浪小学校 (神奈川県茅ヶ崎市) 神奈川県茅ヶ崎市立松浪小学校学区の他の物件を見る |
中学校区 | 松浪中学校 (神奈川県茅ヶ崎市) 神奈川県茅ヶ崎市立松浪中学校学区の他の物件を見る |
|---|
| 価格 | 万円 | ||
|---|---|---|---|
| 年利率 | % |
||
| ボーナス払い | 返済年数 | ||
| 頭金 | 直接入力する | 万円 | |

毎月のご返済額 |
ボーナス(×年2回) |
物件価格6,980万円 |
![]() |
![]() |
茅ヶ崎市浜竹3丁目
6980万円 |
閑静な住宅地で小さなお子様がいるご家族にも安心。
衣類など、豊富な収納で室内をすっきりさせるウォークインクローゼット。
海まで近く、休日が楽しみになる住環境です。