茅ヶ崎市松が丘I 新築分譲住宅 全1棟 神奈川県茅ヶ崎市松が丘2丁目|5,880万円の新築一戸建て|センチュリー21富士ハウジング
| 価格 | 5,880万円 ![]() |
||||
|---|---|---|---|---|---|
| 所在地 | 神奈川県茅ヶ崎市松が丘2丁目
この地域周辺の物件を見る |
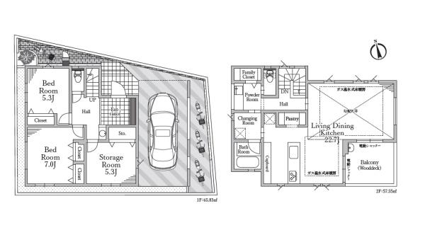
土地面積 | 99.42m² (30.07坪) | 建物面積 | 123.38m2 |
| 築年月 | 2026年5月築 | 間取り | 2SLDK (洋室7/洋室5.3/S5.3/LDK22.7) | ||
| 交通 |
JR東海道本線 茅ケ崎 徒歩24分
JR相模線 茅ケ崎 徒歩24分 |
||||
| 特徴 |
|
|---|---|
| セールスコメント | センチュリー21富士ハウジング茅ヶ崎店は茅ヶ崎駅南口徒歩1分です |
| 採光面 | - | 構造/階数 | 木造/地上2階建 |
|---|---|---|---|
| 建ぺい率 | 60(%) | 容積率 | 150(%) |
| 駐車場 | 有 | 現況/引渡し | 建築中/相談 |
| 土地権利 | 所有権 | 私道負担面積 | - |
| 接道状況 | 接道: 北東 公道 道路幅: 5.5m | 用途地域 |
第一種低層住居専用地域
|
| セットバック | - | 法令上の制限 | 準防火地域 |
| 地目 | 宅地 | 地勢 | 平坦 |
| 建築確認番号 | 第25UDI1T建03898号 | 都市計画 | 市街化区域 |
| 取引態様 | 仲介 | ||
| 情報更新日 | 2026年04月06日 | 次回更新日 | 2026年04月20日 |
| 小学校区 | 茅ヶ崎市立浜須賀小学校 (神奈川県茅ヶ崎市) 神奈川県茅ヶ崎市立浜須賀小学校学区の他の物件を見る |
中学校区 | 浜須賀中学校 (神奈川県茅ヶ崎市) 神奈川県茅ヶ崎市立浜須賀中学校学区の他の物件を見る |
|---|
| 価格 | 万円 | ||
|---|---|---|---|
| 年利率 | % |
||
| ボーナス払い | 返済年数 | ||
| 頭金 | 直接入力する | 万円 | |

毎月のご返済額 |
ボーナス(×年2回) |
物件価格5,880万円 |
閑静な住宅地でのびのび子育て 22帖超の広々LDKは自然とご家族が集まる空間 安全で心地よい暖かさを提供する床暖房付 お買い物施設が周辺に揃う便利な住環境