スマホで物件を見る

ヴェレーナ湘南海岸|辻堂駅の購入・売り物件、売却査定・相場・売却価格情報|神奈川県藤沢市辻堂西海岸3丁目のマンション情報|センチュリー21富士ハウジング

  • 藤沢店

    0120-158-380

  • 湘南モールフィル店

    0120-989-655

  • 辻堂北口店

    0120-060-021

  • 茅ヶ崎店

    0467-73-9085

TOPページ
マンションカタログ
藤沢市
ヴェレーナ湘南海岸

ヴェレーナ湘南海岸

ヴェレーナ湘南海岸は神奈川県藤沢市辻堂西海岸3丁目にあるマンションで、最寄り駅はJR東海道本線の「辻堂」から徒歩22分の距離にあります。2010年2月に地上5階RC造で建てられた全197戸のマンションです。

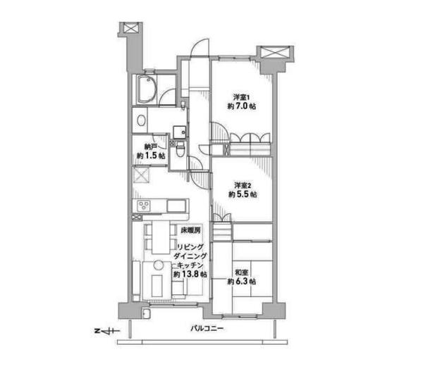
神奈川県藤沢市辻堂西海岸3丁目の中古マンションの画像
住所 神奈川県藤沢市辻堂西海岸3丁目 
交通 JR東海道本線 辻堂/徒歩22分
階数/構造 地上5階/RC造
総戸数 197戸
築年月 2010年2月
学区 小学校名:
中学校名:
マンション購入をお考えの方 売り出したら教えて!

売り出し物件を優先的にご紹介!

マンション売却をお考えの方 探している人がいたら教えて!

まずは無料査定!も可能です

ヴェレーナ湘南海岸で販売中の物件が0件あります。

※各種情報と差異がある場合は現況優先となります。
※建物竣工時に撮影した竣工写真を掲載している場合があります。その場合、現状と異なる可能性があります。
※物件情報の学区情報について
当サイト物件情報に記載されております通学区域(学区)情報は、国土数値情報ダウンロードサービスが提供する小学校区データ【2016年度】及び中学校区データ【2016年度】を元に加工したものですので、記載情報が現在の学区域と異なる場合がございます。 国土数値情報ダウンロードサービスのWEBサイト上で記述通り、データは必ずしも正確とは言えません。また、通学区域(学区)は毎年見直しの対象となりますので、そちらを踏まえ学区情報は参考としてご活用下さい。

規模 地上5階
駐輪場
管理形態 委託(通勤)
駐車場
用途地域 第一種中高層住居専用地域
施工

ヴェレーナ湘南海岸で販売中の物件一覧

販売中0件(内会員物件0件)

チェックを入れるとまとめてお問合わせができます。

ご成約状況

  • 成約年月
  • 価格
  • 間取り
  • 専有面積
  • 所在階

    センチュリー21富士ハウジング 藤沢店

    0120-158-380

    物件番号159701-29142

    近隣マンション情報

    • 神奈川県藤沢市辻堂太平台1丁目の中古マンションの画像

      ヴィラウィスタリア

      神奈川県藤沢市辻堂太平台1丁目
      JR東海道本線
      辻堂駅 徒歩19分
      総戸数:52戸
      築年数:1970年

      販売中

      0件
    • 神奈川県藤沢市辻堂新町3丁目の中古マンションの画像

      パストラルハイム湘南藤沢

      神奈川県藤沢市辻堂新町3丁目
      JR東海道本線
      辻堂駅 徒歩20分
      総戸数:30戸
      築年数:1997年

      販売中

      0件
    • 神奈川県藤沢市大庭の中古マンションの画像

      ダイアパレス湘南ライフタウン3

      神奈川県藤沢市大庭
      JR東海道本線
      辻堂駅 バス11分停歩8分
      総戸数:52戸
      築年数:2000年

      販売中

      0件
    • 神奈川県藤沢市鵠沼海岸2丁目の中古マンションの画像

      鵠沼ニューマンション

      神奈川県藤沢市鵠沼海岸2丁目
      JR東海道本線
      辻堂駅 徒歩39分
      総戸数:70戸
      築年数:1968年

      販売中

      0件
    • 神奈川県藤沢市大庭の中古マンションの画像

      MINASIA湘南ライフタウン パークフォート

      神奈川県藤沢市大庭
      JR東海道本線
      辻堂駅 バス10分停歩3分
      総戸数:339戸
      築年数:2011年

      販売中

      0件
    • 神奈川県藤沢市稲荷1丁目の中古マンションの画像

      ラムズヒル湘南石名坂

      神奈川県藤沢市稲荷1丁目
      JR東海道本線
      辻堂駅 バス9分停歩6分
      総戸数:19戸
      築年数:1994年

      販売中

      0件
    • 神奈川県藤沢市辻堂新町1丁目の中古マンションの画像

      辻堂駅前ハイツ

      神奈川県藤沢市辻堂新町1丁目
      JR東海道本線
      辻堂駅 徒歩3分
      総戸数:323戸
      築年数:1985年

      販売中

      0件
    • 神奈川県藤沢市辻堂西海岸2丁目の中古マンションの画像

      ラムズ湘南西海岸

      神奈川県藤沢市辻堂西海岸2丁目
      JR東海道本線
      辻堂駅 徒歩20分
      総戸数:35戸
      築年数:1996年

      販売中

      0件
    • 神奈川県藤沢市辻堂元町2丁目の中古マンションの画像

      辻堂元町コーポラス

      神奈川県藤沢市辻堂元町2丁目
      JR東海道本線
      辻堂駅 徒歩10分
      総戸数:23戸
      築年数:1991年

      販売中

      0件
    • 神奈川県藤沢市城南3丁目の中古マンションの画像

      クリオ藤沢伍番館

      神奈川県藤沢市城南3丁目
      JR東海道本線
      辻堂駅 徒歩22分
      総戸数:220戸
      築年数:1992年

      販売中

      0件

    ヴェレーナ湘南海岸にお問い合わせ

    必須の項目はご記入をお願いします
    • お問合せ内容必須
      【その他】
    • お名前必須
    • E-mail必須

      ※ご記入いただいたメールアドレス宛てに、お問合せ内容の確認メールをお送りいたします。
      ※Yahoo!メールなどのフリーメールをご利用の場合、迷惑メールフォルダに入る場合があります。
      迷惑メールのフォルダ・設定等をご確認下さい。

    • 電話番号必須
    ※ご入力いただいたお客さまの個人情報は、「個人情報の取扱いについて」に基づき適正に取り扱います。必ずお読みになり、同意の上お問い合わせください。