ネクシア藤沢善行 神奈川県藤沢市立石2丁目|2,498万円の中古マンション|分譲住宅や新築物件|センチュリー21富士ハウジング
| 価格 | 2,498万円値下がり ![]() |
||||
|---|---|---|---|---|---|
| 所在地 | 神奈川県藤沢市立石2丁目
この地域周辺の物件を見る |
専有面積 | 61.12m2 | 築年月 | 1997年4月築 |
| 交通 |
小田急江ノ島線 善行 徒歩13分
JR東海道本線 藤沢 徒歩45分 相模鉄道いずみ野線 湘南台 徒歩56分 |
管理費等 | 14,300円 | 修繕積立金 | 15,710円 | 所在階/階数 | 1階/地上3階建 | バルコニー面積 | - |
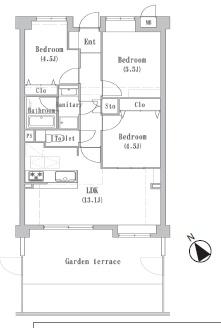
| 間取り | 3LDK (LDK13.1/洋室5.5/洋室4.5/洋室4.5) | ||||
| 特徴 |
|
|---|---|
| セールスコメント | 当店は湘南モールフィル1階にございます。お気軽にお立ち寄り下さいませ。 |
| 採光面 | 南西 | 取引態様 | 仲介 |
|---|---|---|---|
| 現況 | 空室 | 引渡し | 相談 |
| 総戸数 | 31戸 | 構造 | RC造 |
| テラス面積 | - | 専用庭面積 | 25.01m² |
| 駐車場 | 空無 | 駐輪場 | - |
| 建物権利 | - | 土地権利 | 所有権 |
| 用途地域 | 第一種中高層住居専用地域 - - | 管理態様 | 管理形態:日勤 管理組合:あり 管理会社:東急コミュニティー |
| 情報更新日 | 2026年03月16日 | 次回更新日 | 2026年03月30日 |
| 小学校区 | 横浜市立俣野小学校 (神奈川県横浜市) 神奈川県横浜市立俣野小学校学区の他の物件を見る |
中学校区 | () |
|---|
| 価格 | 万円 | ||
|---|---|---|---|
| 年利率 | % |
||
| ボーナス払い | 返済年数 | ||
| 頭金 | 直接入力する | 万円 | |

毎月のご返済額 |
ボーナス(×年2回) |
物件価格2,498万円 |
![]() |
![]() |
藤沢市立石2丁目
2498万円 |
【CENTURY21富士ハウジング湘南モールフィル店取扱物件】レンガ風タイル貼りの低層マンション、広々ガーデンテラスのあるお部屋です。