藤沢市羽鳥4丁目 新築2号棟 全2棟 神奈川県藤沢市羽鳥4丁目|4,380万円の新築一戸建て|センチュリー21富士ハウジング
| 価格 | 4,380万円 ![]() |
||||
|---|---|---|---|---|---|
| 所在地 | 神奈川県藤沢市羽鳥4丁目
この地域周辺の物件を見る |
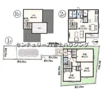
土地面積 | 93.74m² (28.35坪) | 建物面積 | 79.49m2 |
| 築年月 | 2025年8月築 | 間取り | 3LDK (LDK16.25/洋室6/洋室5.2/洋室5.2) | ||
| 交通 |
小田急江ノ島線 藤沢本町 徒歩16分
JR東海道本線 辻堂 徒歩26分 |
||||
| 特徴 |
|
|---|---|
| セールスコメント | センチュリー21富士ハウジング藤沢店は藤沢駅北口徒歩3分、提携駐車場がございます |
| 採光面 | - | 構造/階数 | 木造/地上2階建 |
|---|---|---|---|
| 建ぺい率 | 60(%) | 容積率 | 200(%) |
| 駐車場 | 有 | 現況/引渡し | 新築/相談 |
| 土地権利 | 所有権 | 私道負担面積 | - |
| 接道状況 | 接道: 北 公道 道路幅: 16m | 用途地域 |
第二種住居地域
|
| セットバック | - | 法令上の制限 | - |
| 地目 | 宅地 | 地勢 | 平坦 |
| 建築確認番号 | 都市計画 | 市街化区域 | |
| 取引態様 | 仲介 | ||
| 情報更新日 | 2026年02月14日 | 次回更新日 | 2026年02月28日 |
| 小学校区 | () |
中学校区 | () |
|---|
| 価格 | 万円 | ||
|---|---|---|---|
| 年利率 | % |
||
| ボーナス払い | 返済年数 | ||
| 頭金 | 直接入力する | 万円 | |

毎月のご返済額 |
ボーナス(×年2回) |
物件価格4,380万円 |
![]() |
![]() |
藤沢市羽鳥4丁目
4380万円〜4500万円 |
小田急江ノ島線「藤沢本町」徒歩圏です。スーパーやドラッグストア、公園や小・中学校も近く生活しやすい環境です。