藤沢市羽鳥5丁目2期 新築1号棟 全2区画 神奈川県藤沢市羽鳥5丁目|6,599万円の新築一戸建て|センチュリー21富士ハウジング
| 価格 | 6,599万円値下がり ![]() |
||||
|---|---|---|---|---|---|
| 所在地 | 神奈川県藤沢市羽鳥5丁目
この地域周辺の物件を見る |
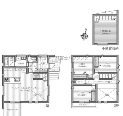
土地面積 | 134.23m² (40.6坪) | 建物面積 | 107.02m2 |
| 築年月 | 2026年2月築 | 間取り | 3SLDK (洋室5.2/洋室6/洋室7/S5.7/LDK22.1) | ||
| 交通 |
小田急江ノ島線 藤沢本町 徒歩18分/バス3分 引地橋 停歩6分
JR東海道本線 辻堂 徒歩27分/バス6分 湘南台 停歩2分 JR東海道本線 藤沢 バス10分 NOK前 停歩5分 |
||||
| 特徴 |
|
|---|---|
| セールスコメント | センチュリー21富士ハウジング藤沢店は藤沢駅北口徒歩3分、提携駐車場がございます |
| 採光面 | - | 構造/階数 | 木造/地上2階建 |
|---|---|---|---|
| 建ぺい率 | 50(%) | 容積率 | 80(%) |
| 駐車場 | 有 | 現況/引渡し | 新築/相談 |
| 土地権利 | 所有権 | 私道負担面積 | - |
| 接道状況 | 接道: 西 公道 道路幅: 4m | 用途地域 |
第一種低層住居専用地域
|
| セットバック | - | 法令上の制限 | 景観法 |
| 地目 | 宅地 | 地勢 | |
| 建築確認番号 | 第25UDI1W建08695号 | 都市計画 | 市街化区域 |
| 取引態様 | 仲介 | ||
| 情報更新日 | 2026年05月06日 | 次回更新日 | 2026年05月20日 |
| 小学校区 | () |
中学校区 | () |
|---|
| 価格 | 万円 | ||
|---|---|---|---|
| 年利率 | % |
||
| ボーナス払い | 返済年数 | ||
| 頭金 | 直接入力する | 万円 | |

毎月のご返済額 |
ボーナス(×年2回) |
物件価格6,599万円 |
![]() |
![]() |
藤沢市羽鳥5丁目
6599万円 |
近隣にはスーパー、ドラックストア、大型ショッピング施設などがあり、住環境良好です。春には引地川沿いの桜並木が楽しめます。モデルハウスにご案内ができます