茅ヶ崎市緑が浜 新築戸建 神奈川県茅ヶ崎市緑が浜|5,980万円の新築一戸建て|センチュリー21富士ハウジング
| 価格 | 5,980万円 ![]() |
||||
|---|---|---|---|---|---|
| 所在地 | 神奈川県茅ヶ崎市緑が浜
この地域周辺の物件を見る |
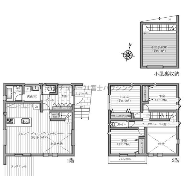
土地面積 | 100.26m² (30.32坪) | 建物面積 | 92.12m2 |
| 築年月 | 2026年3月築 | 間取り | 3LDK (LDK19.5/洋室6/洋室5.2/洋室5.2) | ||
| 交通 |
JR東海道本線 辻堂 バス8分 富士見町 停歩4分
JR東海道本線 茅ケ崎 バス10分 富士見町 停歩4分 JR相模線 茅ケ崎 バス10分 富士見町 停歩4分 |
||||
| 特徴 |
|
|---|---|
| セールスコメント | - |
| 採光面 | 東南 | 構造/階数 | 木造/地上2階建 |
|---|---|---|---|
| 建ぺい率 | 50(%) | 容積率 | 100(%) |
| 駐車場 | - | 現況/引渡し | 建築中/相談 |
| 土地権利 | 所有権 | 私道負担面積 | - |
| 接道状況 | 接道: 東 公道 道路幅: 8.1m | 用途地域 |
第一種低層住居専用地域
|
| セットバック | - | 法令上の制限 | - |
| 地目 | 宅地 | 地勢 | 平坦 |
| 建築確認番号 | 第KBI-YKH25-10-1097号 | 都市計画 | 市街化区域 |
| 取引態様 | 仲介 | ||
| 情報更新日 | 2026年03月04日 | 次回更新日 | 2026年03月18日 |
| 小学校区 | 茅ヶ崎市立緑が浜小学校 (神奈川県茅ヶ崎市) 神奈川県茅ヶ崎市立緑が浜小学校学区の他の物件を見る |
中学校区 | 松浪中学校 (神奈川県茅ヶ崎市) 神奈川県茅ヶ崎市立松浪中学校学区の他の物件を見る |
|---|
| 価格 | 万円 | ||
|---|---|---|---|
| 年利率 | % |
||
| ボーナス払い | 返済年数 | ||
| 頭金 | 直接入力する | 万円 | |

毎月のご返済額 |
ボーナス(×年2回) |
物件価格5,980万円 |
-