茅ヶ崎市西久保 中古戸建 神奈川県茅ヶ崎市西久保|2,380万円の中古一戸建て|センチュリー21富士ハウジング
| 価格 | 2,380万円 ![]() |
||||
|---|---|---|---|---|---|
| 所在地 | 神奈川県茅ヶ崎市西久保
この地域周辺の物件を見る |
土地面積 | 69.06m² (20.89坪) | 建物面積 | 80.35m2 |
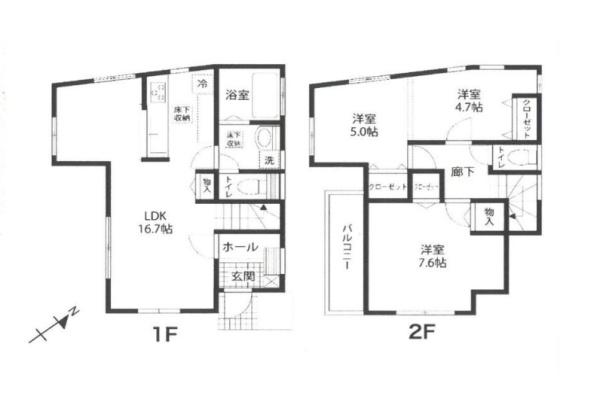
| 築年月 | 2007年10月築 | 間取り | 2LDK (LDK16.7/洋室7.6/洋室9.7) | ||
| 交通 |
JR東海道本線 茅ケ崎 バス10分 西久保 停歩2分
JR相模線 茅ケ崎 バス10分 西久保 停歩2分 JR相模線 香川 徒歩17分 |
||||
| 特徴 |
|
|---|---|
| セールスコメント | センチュリー21富士ハウジング茅ヶ崎店は茅ヶ崎駅南口徒歩1分です |
| 採光面 | - | 構造/階数 | 木造/地上2階建 |
|---|---|---|---|
| 建ぺい率 | 60(%) | 容積率 | 180(%) |
| 駐車場 | 有 | 現況/引渡し | 居住中/相談 |
| 土地権利 | 所有権 | 私道負担面積 | - |
| 接道状況 | 接道: 東南 公道 道路幅: 4.5m | 用途地域 |
第一種中高層住居専用地域
|
| セットバック | - | 法令上の制限 | - |
| 地目 | 宅地 | 地勢 | 平坦 |
| 建築確認番号 | 都市計画 | 市街化区域 | |
| 取引態様 | 仲介 | ||
| 情報更新日 | 2026年03月07日 | 次回更新日 | 2026年03月21日 |
| 小学校区 | 茅ヶ崎市立浜之郷小学校 (神奈川県茅ヶ崎市) 神奈川県茅ヶ崎市立浜之郷小学校学区の他の物件を見る |
中学校区 | 鶴嶺中学校 (神奈川県茅ヶ崎市) 神奈川県茅ヶ崎市立鶴嶺中学校学区の他の物件を見る |
|---|
| 価格 | 万円 | ||
|---|---|---|---|
| 年利率 | % |
||
| ボーナス払い | 返済年数 | ||
| 頭金 | 直接入力する | 万円 | |

毎月のご返済額 |
ボーナス(×年2回) |
物件価格2,380万円 |
閑静な住宅地で叶える穏やかな新生活 茅ヶ崎中央通りにほど近く、駅や商業施設にアクセスしやすい便利な立地 1坪タイプの浴室でゆったりバスタイム