鎌倉市梶原3丁目 新築戸建 神奈川県鎌倉市梶原3丁目|7,680万円の新築一戸建て|センチュリー21富士ハウジング
| 価格 | 7,680万円 ![]() |
||||
|---|---|---|---|---|---|
| 所在地 | 神奈川県鎌倉市梶原3丁目
この地域周辺の物件を見る |
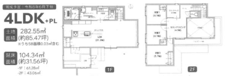
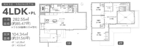
土地面積 | 282.55m² (85.47坪) | 建物面積 | 104.34m2 |
| 築年月 | 2026年6月築 | 間取り | 4LDK (LDK21.2/洋室4.1/洋室4.1/洋室5.7/L4.5) | ||
| 交通 |
湘南モノレール 湘南深沢 バス5分 バス停 停歩8分
JR横須賀線 鎌倉 バス10分 バス停 停歩8分 江ノ島電鉄 鎌倉 バス10分 バス停 停歩8分 |
||||
| 特徴 |
|
|---|---|
| セールスコメント | センチュリー21富士ハウジング藤沢店は藤沢駅北口徒歩3分、提携駐車場がございます |
| 採光面 | - | 構造/階数 | 木造/地上2階建 |
|---|---|---|---|
| 建ぺい率 | 40(%) | 容積率 | 80(%) |
| 駐車場 | 有 | 現況/引渡し | 建築中/相談 |
| 土地権利 | 所有権 | 私道負担面積 | - |
| 接道状況 | 接道: 南 15.98m 公道 道路幅: 4m | 用途地域 |
第一種低層住居専用地域
|
| セットバック | - | 法令上の制限 | 景観法 |
| 地目 | 宅地 | 地勢 | |
| 建築確認番号 | 第2025SBC-確02405H号 | 都市計画 | 市街化区域 |
| 取引態様 | 仲介 | ||
| 情報更新日 | 2026年05月11日 | 次回更新日 | 2026年05月25日 |
| 小学校区 | 鎌倉市立深沢小学校 (神奈川県鎌倉市) 神奈川県鎌倉市立深沢小学校学区の他の物件を見る |
中学校区 | 深沢中学校 (神奈川県鎌倉市) 神奈川県鎌倉市立深沢中学校学区の他の物件を見る |
|---|
| 価格 | 万円 | ||
|---|---|---|---|
| 年利率 | % |
||
| ボーナス払い | 返済年数 | ||
| 頭金 | 直接入力する | 万円 | |

毎月のご返済額 |
ボーナス(×年2回) |
物件価格7,680万円 |
邸宅感のある吹抜けリビングの大空間、無垢材やタイルの風合い楽しむ本物志向のお家です。