鎌倉市稲村ガ崎5丁目 A棟(未入居) 全2区画 神奈川県鎌倉市稲村ガ崎5丁目|5,980万円の中古一戸建て|センチュリー21富士ハウジング
| 価格 | 5,980万円 ![]() |
||||
|---|---|---|---|---|---|
| 所在地 | 神奈川県鎌倉市稲村ガ崎5丁目
この地域周辺の物件を見る |
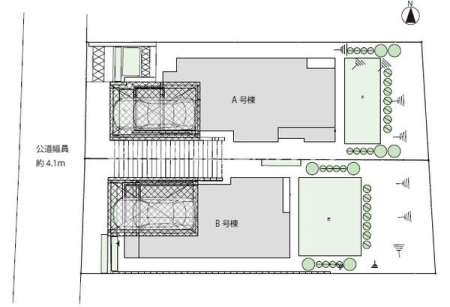
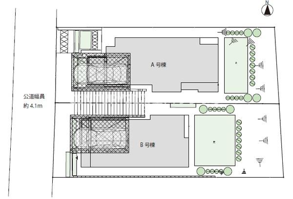
土地面積 | 164.92m² (49.88坪) | 建物面積 | 106.4m2 |
| 築年月 | 2025年4月築 | 間取り | 4LDK (LDK18.8/和室4.5/洋室7.6/洋室5.6/洋室7.5) | ||
| 交通 |
江ノ島電鉄 稲村ヶ崎 徒歩12分
|
||||
| 特徴 |
|
|---|---|
| セールスコメント | センチュリー21富士ハウジング藤沢店は藤沢駅北口徒歩3分、提携駐車場がございます |
| 採光面 | - | 構造/階数 | 木造/地上2階建 |
|---|---|---|---|
| 建ぺい率 | 40(%) | 容積率 | 80(%) |
| 駐車場 | 有 | 現況/引渡し | 未入居/相談 |
| 土地権利 | 所有権 | 私道負担面積 | - |
| 接道状況 | 接道: 西 公道 道路幅: 4.2m | 用途地域 |
第一種低層住居専用地域
|
| セットバック | - | 法令上の制限 | 風致地区;文化財保護法;宅地造成工事規制区域 |
| 地目 | 宅地 | 地勢 | |
| 建築確認番号 | 都市計画 | 市街化区域 | |
| 取引態様 | 仲介 | ||
| 情報更新日 | 2026年05月15日 | 次回更新日 | 2026年05月29日 |
| 小学校区 | 鎌倉市立稲村ケ崎小学校 (神奈川県鎌倉市) 神奈川県鎌倉市立稲村ケ崎小学校学区の他の物件を見る |
中学校区 | 御成中学校 (神奈川県鎌倉市) 神奈川県鎌倉市立御成中学校学区の他の物件を見る |
|---|
| 価格 | 万円 | ||
|---|---|---|---|
| 年利率 | % |
||
| ボーナス払い | 返済年数 | ||
| 頭金 | 直接入力する | 万円 | |

毎月のご返済額 |
ボーナス(×年2回) |
物件価格5,980万円 |
江ノ島電鉄「稲村ヶ崎」駅徒歩12分、海を感じる暮らしができる稲村ケ崎、緑にも囲まれた閑静な住宅街です。地下車庫造成いたします。