茅ヶ崎市松風台 新築B号棟 全2棟 神奈川県茅ヶ崎市松風台|5,180万円の新築一戸建て|センチュリー21富士ハウジング
| 価格 | 5,180万円 ![]() |
||||
|---|---|---|---|---|---|
| 所在地 | 神奈川県茅ヶ崎市松風台
この地域周辺の物件を見る |
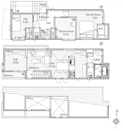
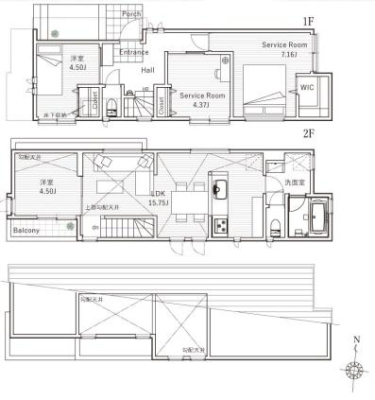
土地面積 | 119.29m² (36.08坪) | 建物面積 | 83.56m2 |
| 築年月 | 2025年12月築 | 間取り | 2SLDK (洋室4.5/S4.37/S7.16/LDK15.75/洋室4.5) | ||
| 交通 |
JR相模線 香川 徒歩15分
JR東海道本線 茅ケ崎 バス16分 松風台 停歩2分 JR相模線 茅ケ崎 バス16分 松風台 停歩2分 |
||||
| 特徴 |
|
|---|---|
| セールスコメント | 辻堂北口店はJR東海道線「辻堂」駅北口徒歩3分、オザワビル1階にございます。 |
| 採光面 | - | 構造/階数 | 木造/地上2階建 |
|---|---|---|---|
| 建ぺい率 | 50(%) | 容積率 | 100(%) |
| 駐車場 | 有 | 現況/引渡し | 新築/相談 |
| 土地権利 | 所有権 | 私道負担面積 | - |
| 接道状況 | 接道: 西 6.7m 公道 道路幅: 6.2m | 用途地域 |
第一種低層住居専用地域
|
| セットバック | - | 法令上の制限 | 景観法;準防火地域 |
| 地目 | 宅地 | 地勢 | |
| 建築確認番号 | 第25ABNT-01-0133号 | 都市計画 | 市街化区域 |
| 取引態様 | 仲介 | ||
| 情報更新日 | 2026年04月28日 | 次回更新日 | 2026年05月12日 |
| 小学校区 | 茅ヶ崎市立香川小学校 (神奈川県茅ヶ崎市) 神奈川県茅ヶ崎市立香川小学校学区の他の物件を見る |
中学校区 | 鶴が台中学校 (神奈川県茅ヶ崎市) 神奈川県茅ヶ崎市立鶴が台中学校学区の他の物件を見る |
|---|
| 価格 | 万円 | ||
|---|---|---|---|
| 年利率 | % |
||
| ボーナス払い | 返済年数 | ||
| 頭金 | 直接入力する | 万円 | |

毎月のご返済額 |
ボーナス(×年2回) |
物件価格5,180万円 |
![]() |
![]() |
茅ヶ崎市松風台
4980万円〜5180万円 |
細部まで美しく仕上げたこだわりのデザイナーズ住宅
開放感を楽しむ勾配天井のリビングで心地よい暮らし
香川小学校徒歩7分、鶴が台中学校徒歩13分の安心環境