鎌倉市七里ガ浜東5丁目 売地 神奈川県鎌倉市七里ガ浜東5丁目|9,980万円の土地|センチュリー21富士ハウジング
| 価格 | 9,980万円 ![]() |
||||
|---|---|---|---|---|---|
| 所在地 | 神奈川県鎌倉市七里ガ浜東5丁目
この地域周辺の物件を見る |
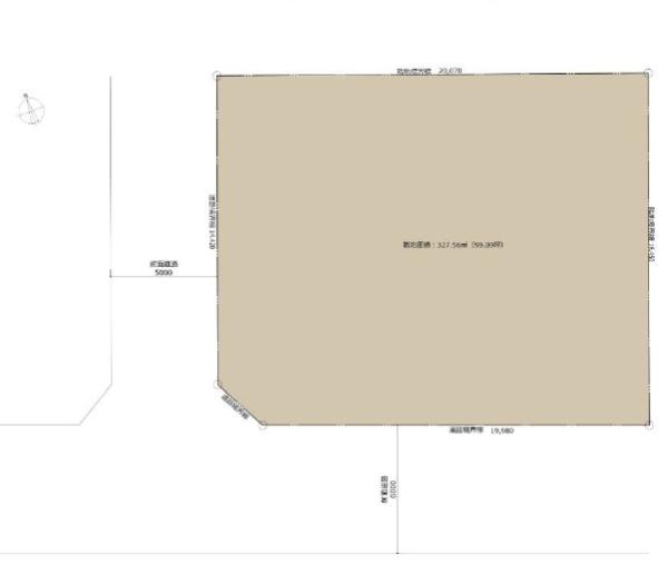
土地面積 | 327.56m² (99.08坪) | 坪単価 | 100.72万円 /坪 |
| 交通 |
江ノ島電鉄 七里ヶ浜 徒歩12分/バス8分 夕陽ガ丘通り 停歩2分
|
建ぺい率 | 40 % | 容積率 | 80 % |
| 特徴 |
|
|---|---|
| セールスコメント | センチュリー21富士ハウジング藤沢店は藤沢駅北口徒歩3分、提携駐車場がございます |
| 建築条件 | なし | 土地権利 | 所有権 |
|---|---|---|---|
| 現況/引渡し | 上物あり/相談 | 接道状況 | 接道: 南 公道 道路幅: 6m 接道: 西 公道 道路幅: 5m |
| 私道負担面積 | - | セットバック | - |
| 地勢 | 平坦 | 地目 | 宅地 |
| 用途地域 | 第一種低層住居専用地域 | 都市計画 | 市街化区域 |
| 法令上の制限 | 宅地造成工事規制区域;高さ最高限度有 | 国土法届出 | 不要 |
| 取引態様 | 仲介 | ||
| 情報更新日 | 2026年05月15日 | 次回更新日 | 2026年05月29日 |
| 小学校区 | 鎌倉市立七里ガ浜小学校 (神奈川県鎌倉市) 神奈川県鎌倉市立七里ガ浜小学校学区の他の物件を見る |
中学校区 | 腰越中学校 (神奈川県鎌倉市) 神奈川県鎌倉市立腰越中学校学区の他の物件を見る |
|---|
| 価格 | 万円 | ||
|---|---|---|---|
| 年利率 | % |
||
| ボーナス払い | 返済年数 | ||
| 頭金 | 直接入力する | 万円 | |

毎月のご返済額 |
ボーナス(×年2回) |
物件価格9,980万円 |
![]() |
![]() |
鎌倉市七里ガ浜東5丁目
9980万円 |
江ノ電「七里ヶ浜」駅徒歩12分、閑静な住宅街、緑豊かな住環境、南西の角地につき陽当たり良好です。建築条件はありませんのでご希望のプランでご検討いただけます。