藤沢市葛原 新築戸建 神奈川県藤沢市葛原|3,560万円の新築一戸建て|センチュリー21富士ハウジング
| 価格 | 3,560万円 ![]() |
||||
|---|---|---|---|---|---|
| 所在地 | 神奈川県藤沢市葛原
この地域周辺の物件を見る |
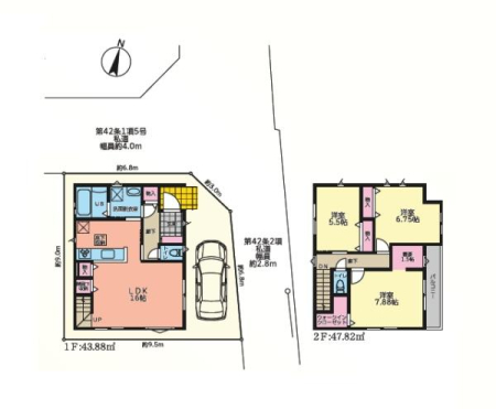
土地面積 | 80.41m² (24.32坪) | 建物面積 | 91.7m2 |
| 築年月 | 2026年7月築 | 間取り | 3LDK (LDK16/洋室7.88/洋室6.75/洋室5.5) | ||
| 交通 |
小田急江ノ島線 湘南台 バス11分 葛原 停歩7分
相模鉄道いずみ野線 湘南台 バス11分 葛原 停歩7分 横浜市営地下鉄ブルーライン 湘南台 バス11分 葛原 停歩7分 |
||||
| 特徴 |
|
|---|---|
| セールスコメント | センチュリー21富士ハウジング藤沢店は藤沢駅北口徒歩3分、提携駐車場がございます |
| 採光面 | - | 構造/階数 | 木造/地上2階建 |
|---|---|---|---|
| 建ぺい率 | 60(%) | 容積率 | 200(%) |
| 駐車場 | 有 | 現況/引渡し | 建築中/相談 |
| 土地権利 | 所有権 | 私道負担面積 | あり 21.45m² |
| 接道状況 | 接道: 北西 6.8m 私道 道路幅: 4m 接道: 北東 6.8m 私道 道路幅: 2.8m |
用途地域 |
準工業地域
|
| セットバック | - | 法令上の制限 | - |
| 地目 | 宅地 | 地勢 | |
| 建築確認番号 | 第KBI-YKH25-10-3111号 | 都市計画 | 市街化区域 |
| 取引態様 | 仲介 | ||
| 情報更新日 | 2026年05月16日 | 次回更新日 | 2026年05月30日 |
| 小学校区 | () |
中学校区 | () |
|---|
| 価格 | 万円 | ||
|---|---|---|---|
| 年利率 | % |
||
| ボーナス払い | 返済年数 | ||
| 頭金 | 直接入力する | 万円 | |

毎月のご返済額 |
ボーナス(×年2回) |
物件価格3,560万円 |
![]() |
![]() |
藤沢市葛原
3560万円 |
角地につき陽当り・通風良好 約8帖の主寝室には1.5帖の書斎とWICを設置 徒歩10分圏内にコンビニ・スーパーが揃う暮らしやすい環境です