藤沢市辻堂元町2丁目2447番 新築戸建A号棟 全3棟 神奈川県藤沢市辻堂元町2丁目|7,090万円の新築一戸建て|センチュリー21富士ハウジング
| 価格 | 7,090万円 ![]() |
||||
|---|---|---|---|---|---|
| 所在地 | 神奈川県藤沢市辻堂元町2丁目
この地域周辺の物件を見る |
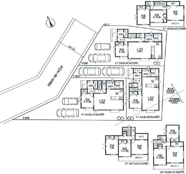
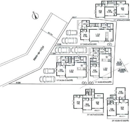
土地面積 | 133.32m² (40.32坪) | 建物面積 | 96.88m2 |
| 築年月 | 2026年2月築 | 間取り | 4LDK (LDK16/洋室4.5/洋室7/洋室6/洋室5.25) | ||
| 交通 |
JR東海道本線 辻堂 徒歩11分
湘南新宿ライン高海 辻堂 徒歩11分 |
||||
| 特徴 |
|
|---|---|
| セールスコメント | 辻堂北口店はJR東海道線「辻堂」駅北口徒歩3分、オザワビル1階にございます。 |
| 採光面 | 南 | 構造/階数 | 木造/地上2階建 |
|---|---|---|---|
| 建ぺい率 | 60(%) | 容積率 | 200(%) |
| 駐車場 | 有 | 現況/引渡し | 新築/相談 |
| 土地権利 | 所有権 | 私道負担面積 | - |
| 接道状況 | 接道: 西 公道 道路幅: 6.3m | 用途地域 |
第一種住居地域
|
| セットバック | - | 法令上の制限 | 景観法;準防火地域 |
| 地目 | 宅地 | 地勢 | |
| 建築確認番号 | 第HPA-25-08503-1号 | 都市計画 | 市街化区域 |
| 取引態様 | 仲介 | ||
| 情報更新日 | 2026年04月18日 | 次回更新日 | 2026年05月02日 |
| 小学校区 | () |
中学校区 | () |
|---|
| 価格 | 万円 | ||
|---|---|---|---|
| 年利率 | % |
||
| ボーナス払い | 返済年数 | ||
| 頭金 | 直接入力する | 万円 | |

毎月のご返済額 |
ボーナス(×年2回) |
物件価格7,090万円 |
![]() |
![]() |
藤沢市辻堂元町2丁目
7090万円〜7290万円 |
通勤通学に便利な駅歩11分の近さ
セカンドカーにも便利な駐車2台可
食洗機・浴室乾燥機・床暖房等設備も充実
八松小学校が近く親御様も安心できます