藤沢市羽鳥2丁目 新築分譲住宅 3号棟 全4棟 神奈川県藤沢市羽鳥2丁目|6,980万円の新築一戸建て|センチュリー21富士ハウジング
| 価格 | 6,980万円 ![]() |
||||
|---|---|---|---|---|---|
| 所在地 | 神奈川県藤沢市羽鳥2丁目
この地域周辺の物件を見る |
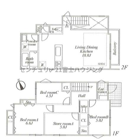
土地面積 | 119.03m² (36坪) | 建物面積 | 92.99m2 |
| 築年月 | 2026年10月築 | 間取り | 3SLDK (洋室6.6/洋室4.5/洋室5/S5/LDK18) | ||
| 交通 |
JR東海道本線 辻堂 徒歩16分
|
||||
| 特徴 |
|
|---|---|
| セールスコメント | 富士ハウジング茅ヶ崎店は茅ヶ崎駅南口徒歩1分です |
| 採光面 | 南西 | 構造/階数 | 木造/地上2階建 |
|---|---|---|---|
| 建ぺい率 | 50(%) | 容積率 | 80(%) |
| 駐車場 | 有 | 現況/引渡し | 建築中/相談 |
| 土地権利 | 所有権 | 私道負担面積 | - |
| 接道状況 | 接道: 東 公道 道路幅: 6m | 用途地域 |
第一種低層住居専用地域
|
| セットバック | - | 法令上の制限 | - |
| 地目 | 宅地 | 地勢 | 平坦 |
| 建築確認番号 | BNV確済26-66 | 都市計画 | 市街化区域 |
| 取引態様 | 仲介 | ||
| 情報更新日 | 2026年04月13日 | 次回更新日 | 2026年04月27日 |
| 小学校区 | () |
中学校区 | () |
|---|
| 価格 | 万円 | ||
|---|---|---|---|
| 年利率 | % |
||
| ボーナス払い | 返済年数 | ||
| 頭金 | 直接入力する | 万円 | |

毎月のご返済額 |
ボーナス(×年2回) |
物件価格6,980万円 |
![]() |
![]() |
藤沢市羽鳥2丁目
6980万円〜7280万円 |
「辻堂」駅徒歩16分
18畳の広々リビングは自然とご家族が集まる空間
日当たりのいい2階リビング
優しいぬくもりに包まれる床暖房付