茅ヶ崎市松林1丁目 新築分譲住宅 9号棟 全31棟 神奈川県茅ヶ崎市松林1丁目|4,880万円の新築一戸建て|センチュリー21富士ハウジング
| 価格 | 4,880万円 ![]() |
||||
|---|---|---|---|---|---|
| 所在地 | 神奈川県茅ヶ崎市松林1丁目
この地域周辺の物件を見る |
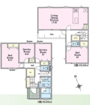
土地面積 | 100.24m² (30.32坪) | 建物面積 | 99.57m2 |
| 築年月 | 2026年6月築 | 間取り | 2SLDK (洋室6.7/S4.5/S5/LDK17.6/洋室6) | ||
| 交通 |
JR東海道本線 茅ケ崎 バス7分 菱沼 停歩5分
JR相模線 茅ケ崎 バス7分 菱沼 停歩5分 JR東海道本線 辻堂 バス10分 菱沼 停歩10分 |
||||
| 特徴 |
|
|---|---|
| セールスコメント | 富士ハウジング茅ヶ崎店は茅ヶ崎駅南口徒歩1分です |
| 採光面 | - | 構造/階数 | 木造/地上2階建 |
|---|---|---|---|
| 建ぺい率 | 60(%) | 容積率 | 200(%) |
| 駐車場 | 有 | 現況/引渡し | 建築中/相談 |
| 土地権利 | 所有権 | 私道負担面積 | - |
| 接道状況 | 接道: 北西 10.2m 道路幅: 4m | 用途地域 |
第一種中高層住居専用地域
|
| セットバック | - | 法令上の制限 | 高度地区;準防火地域;高さ最高限度有 |
| 地目 | 宅地 | 地勢 | 平坦 |
| 建築確認番号 | 第25UDI1K建02451号 | 都市計画 | 市街化区域 |
| 取引態様 | 仲介 | ||
| 情報更新日 | 2026年04月10日 | 次回更新日 | 2026年04月24日 |
| 小学校区 | 茅ヶ崎市立松林小学校 (神奈川県茅ヶ崎市) 神奈川県茅ヶ崎市立松林小学校学区の他の物件を見る |
中学校区 | 松林中学校 (神奈川県茅ヶ崎市) 神奈川県茅ヶ崎市立松林中学校学区の他の物件を見る |
|---|
| 価格 | 万円 | ||
|---|---|---|---|
| 年利率 | % |
||
| ボーナス払い | 返済年数 | ||
| 頭金 | 直接入力する | 万円 | |

毎月のご返済額 |
ボーナス(×年2回) |
物件価格4,880万円 |
![]() |
![]() |
茅ヶ崎市松林1丁目
4180万円〜5280万円 |
松林小学校まで徒歩4分、松林中学校まで徒歩10分
大容量のウォークインシューズクロゼットが嬉しい
日当たりのいい2階リビング