茅ヶ崎市若松町1期 新築分譲住宅 1号棟 全2棟 神奈川県茅ヶ崎市若松町|5,499万円の新築一戸建て|センチュリー21富士ハウジング
| 価格 | 5,499万円 ![]() |
||||
|---|---|---|---|---|---|
| 所在地 | 神奈川県茅ヶ崎市若松町
この地域周辺の物件を見る |
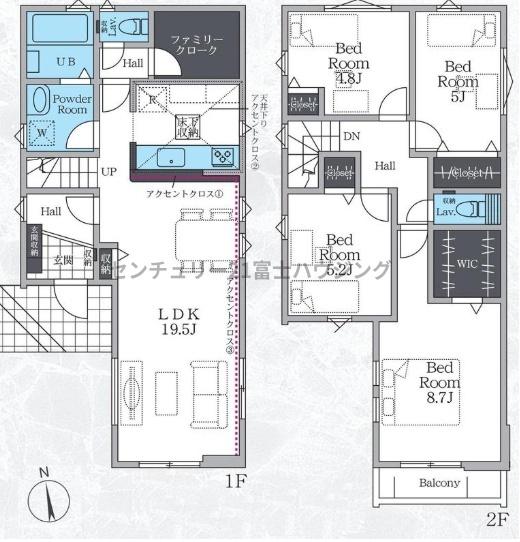
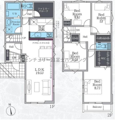
土地面積 | 94.45m² (28.57坪) | 建物面積 | 105.57m2 |
| 築年月 | 2026年2月築 | 間取り | 4LDK (LDK19.5/洋室8.7/洋室5.2/洋室5/洋室4.8) | ||
| 交通 |
JR東海道本線 茅ケ崎 徒歩17分/バス8分 桜道 停歩1分
JR相模線 茅ケ崎 徒歩17分/バス8分 桜道 停歩1分 |
||||
| 特徴 |
|
|---|---|
| セールスコメント | 富士ハウジング茅ヶ崎店は茅ヶ崎駅南口徒歩1分です |
| 採光面 | 南 | 構造/階数 | 木造/地上2階建 |
|---|---|---|---|
| 建ぺい率 | 60(%) | 容積率 | 200(%) |
| 駐車場 | 有 | 現況/引渡し | 建築中/相談 |
| 土地権利 | 所有権 | 私道負担面積 | - |
| 接道状況 | 接道: 南 道路幅: 10.8m | 用途地域 |
第二種中高層住居専用地域
|
| セットバック | - | 法令上の制限 | 高度地区;宅地造成工事規制区域 |
| 地目 | 宅地 | 地勢 | 平坦 |
| 建築確認番号 | 第25UDI1W建05883号 | 都市計画 | 市街化区域 |
| 取引態様 | 仲介 | ||
| 情報更新日 | 2025年11月09日 | 次回更新日 | 2025年11月23日 |
| 小学校区 | 茅ヶ崎市立浜須賀小学校 (神奈川県茅ヶ崎市) 神奈川県茅ヶ崎市立浜須賀小学校学区の他の物件を見る |
中学校区 | 浜須賀中学校 (神奈川県茅ヶ崎市) 神奈川県茅ヶ崎市立浜須賀中学校学区の他の物件を見る |
|---|
| 価格 | 万円 | ||
|---|---|---|---|
| 年利率 | % |
||
| ボーナス払い | 返済年数 | ||
| 頭金 | 直接入力する | 万円 | |

毎月のご返済額 |
ボーナス(×年2回) |
物件価格5,499万円 |
![]() |
![]() |
茅ヶ崎市若松町
5499万円〜5599万円 |
閑静な住宅地で小さなお子様がいるご家族にも安心
19畳超の広々リビングは自然とご家族が集まる空間
ウォークインクロゼットのある住まいで収納上手な生活