茅ヶ崎緑が浜シティハウス 神奈川県茅ヶ崎市緑が浜|3,480万円の中古マンション|分譲住宅や新築物件|センチュリー21富士ハウジング
| 価格 | 3,480万円 ![]() |
||||
|---|---|---|---|---|---|
| 所在地 | 神奈川県茅ヶ崎市緑が浜
この地域周辺の物件を見る |
専有面積 | 115.06m2 | 築年月 | 1991年4月築 |
| 交通 |
JR東海道本線 辻堂 徒歩21分/バス5分 富士見町 停歩2分
|
管理費等 | 23,010円 | 修繕積立金 | 28,130円 | 所在階/階数 | 1階/地上4階建 | バルコニー面積 | - |
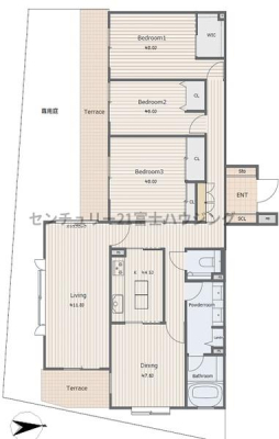
| 間取り | 3LDK (L11.8/D7.6/K4.5/洋室8/洋室6/洋室8) | ||||
| 特徴 |
|
|---|---|
| セールスコメント | 富士ハウジング茅ヶ崎店は茅ヶ崎駅南口徒歩1分です |
| 採光面 | 南 | 取引態様 | 仲介 |
|---|---|---|---|
| 現況 | 空室 | 引渡し | 相談 |
| 総戸数 | 9戸 | 構造 | RC造 |
| テラス面積 | - | 専用庭面積 | 61.73m² |
| 駐車場 | 有:20,000円/月 | 駐輪場 | 有 |
| 建物権利 | - | 土地権利 | 所有権 |
| 用途地域 | - - - | 管理態様 | 管理形態:委託(巡回) 管理組合:なし 管理会社:住友不動産建物サービス株式会社 |
| 情報更新日 | 2025年12月03日 | 次回更新日 | 2025年12月17日 |
| 小学校区 | 茅ヶ崎市立汐見台小学校 (神奈川県茅ヶ崎市) 神奈川県茅ヶ崎市立汐見台小学校学区の他の物件を見る |
中学校区 | 松浪中学校 (神奈川県茅ヶ崎市) 神奈川県茅ヶ崎市立松浪中学校学区の他の物件を見る |
|---|
| 価格 | 万円 | ||
|---|---|---|---|
| 年利率 | % |
||
| ボーナス払い | 返済年数 | ||
| 頭金 | 直接入力する | 万円 | |

毎月のご返済額 |
ボーナス(×年2回) |
物件価格3,480万円 |
![]() |
![]() |
茅ヶ崎市緑が浜
2780万円〜3480万円 |
たっぷりの陽光に包まれる明るい住まい
全室3面採光の角部屋
広い専用庭とワイドテラス付き
駐車場は専用使用権付き
ペットと一緒に快適新生活をスタート