茅ヶ崎市本村2期 新築分譲住宅 1号棟 全1棟 神奈川県茅ヶ崎市本村3丁目|4,549万円の新築一戸建て|センチュリー21富士ハウジング
| 価格 | 4,549万円 ![]() |
||||
|---|---|---|---|---|---|
| 所在地 | 神奈川県茅ヶ崎市本村3丁目
この地域周辺の物件を見る |
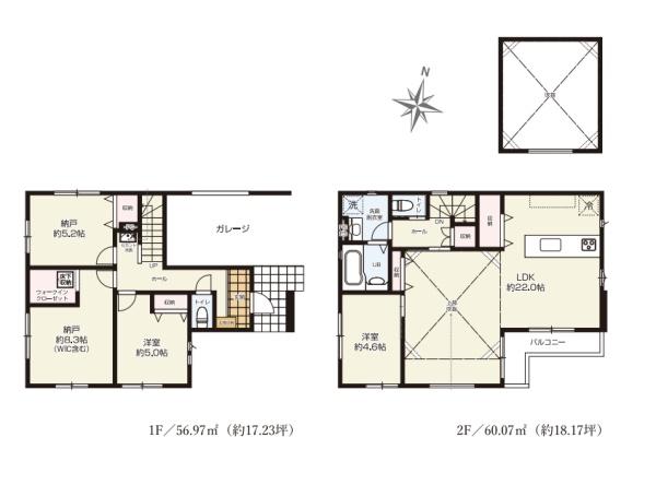
土地面積 | 94.35m² (28.54坪) | 建物面積 | 117.04m2 |
| 築年月 | 2025年11月築 | 間取り | 2SLDK (洋室5/S8.3/S5.2/LDK22/洋室4.6) | ||
| 交通 |
JR東海道本線 茅ケ崎 徒歩24分/バス5分 松林中学校前 停歩5分
JR相模線 北茅ケ崎 徒歩18分 JR相模線 茅ケ崎 徒歩24分/バス5分 松林中学校前 停歩5分 |
||||
| 特徴 |
|
|---|---|
| セールスコメント | センチュリー21富士ハウジング茅ヶ崎店は茅ヶ崎駅南口徒歩1分です |
| 採光面 | - | 構造/階数 | 木造/地上2階建 |
|---|---|---|---|
| 建ぺい率 | 70(%) | 容積率 | 160(%) |
| 駐車場 | 有 | 現況/引渡し | 新築/相談 |
| 土地権利 | 所有権 | 私道負担面積 | - |
| 接道状況 | 接道: 北東 公道 道路幅: 4m | 用途地域 |
第一種住居地域
|
| セットバック | - | 法令上の制限 | 高度地区;宅地造成工事規制区域;日影制限有 |
| 地目 | 宅地 | 地勢 | 平坦 |
| 建築確認番号 | 第25UDI1W建04365号 | 都市計画 | 市街化区域 |
| 取引態様 | 仲介 | ||
| 情報更新日 | 2026年05月05日 | 次回更新日 | 2026年05月19日 |
| 小学校区 | 茅ヶ崎市立松林小学校 (神奈川県茅ヶ崎市) 神奈川県茅ヶ崎市立松林小学校学区の他の物件を見る |
中学校区 | 松林中学校 (神奈川県茅ヶ崎市) 神奈川県茅ヶ崎市立松林中学校学区の他の物件を見る |
|---|
| 価格 | 万円 | ||
|---|---|---|---|
| 年利率 | % |
||
| ボーナス払い | 返済年数 | ||
| 頭金 | 直接入力する | 万円 | |

毎月のご返済額 |
ボーナス(×年2回) |
物件価格4,549万円 |
![]() |
![]() |
茅ヶ崎市本村3丁目
4549万円 |
閑静な住宅地で小さなお子様がいるご家族にも安心 約22帖の広々LDK上部には開放的な吹抜けを採用 収納便利なウォークインクロゼットを備えた住まい