茅ヶ崎市赤羽根 新築戸建 全1棟 神奈川県茅ヶ崎市赤羽根|5,380万円の新築一戸建て|センチュリー21富士ハウジング
| 価格 | 5,380万円 ![]() |
||||
|---|---|---|---|---|---|
| 所在地 | 神奈川県茅ヶ崎市赤羽根
この地域周辺の物件を見る |
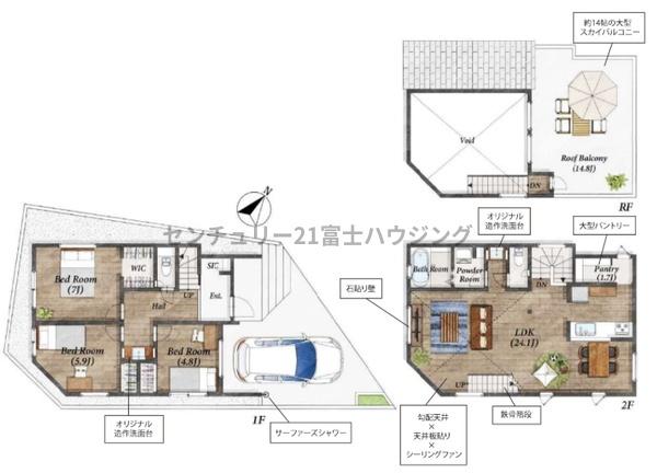
土地面積 | 99.39m² (30.06坪) | 建物面積 | 105.72m2 |
| 築年月 | 2026年3月築 | 間取り | 3LDK (洋室7/洋室5.9/洋室4.8/LDK24.1) | ||
| 交通 |
JR東海道本線 茅ケ崎 バス10分 高田 停歩3分
JR相模線 茅ケ崎 バス10分 高田 停歩3分 JR東海道本線 辻堂 バス12分 赤羽根 停歩6分 |
||||
| 特徴 |
|
|---|---|
| セールスコメント | 富士ハウジング茅ヶ崎店は茅ヶ崎駅南口徒歩1分です |
| 採光面 | 東南 | 構造/階数 | 木造/地上2階建 |
|---|---|---|---|
| 建ぺい率 | 60(%) | 容積率 | 160(%) |
| 駐車場 | 有 | 現況/引渡し | 建築中/相談 |
| 土地権利 | 所有権 | 私道負担面積 | - |
| 接道状況 | 接道: 北東 公道 道路幅: 4m | 用途地域 |
第一種住居地域
|
| セットバック | - | 法令上の制限 | 準防火地域 |
| 地目 | 宅地 | 地勢 | 平坦 |
| 建築確認番号 | 第2025SBC-確01320H号 | 都市計画 | 市街化区域 |
| 取引態様 | 仲介 | ||
| 情報更新日 | 2026年03月09日 | 次回更新日 | 2026年03月23日 |
| 小学校区 | 茅ヶ崎市立室田小学校 (神奈川県茅ヶ崎市) 神奈川県茅ヶ崎市立室田小学校学区の他の物件を見る |
中学校区 | 松林中学校 (神奈川県茅ヶ崎市) 神奈川県茅ヶ崎市立松林中学校学区の他の物件を見る |
|---|
| 価格 | 万円 | ||
|---|---|---|---|
| 年利率 | % |
||
| ボーナス払い | 返済年数 | ||
| 頭金 | 直接入力する | 万円 | |

毎月のご返済額 |
ボーナス(×年2回) |
物件価格5,380万円 |
![]() |
![]() |
茅ヶ崎市赤羽根
5380万円 |
小さなお子様も無理なく通える室田小学校(570m)は徒歩8分の近さ
いつも気持ち良くご家族を迎えられる玄関収納付
広々スカイバルコニー付き