茅ヶ崎市浜之郷I 新築分譲住宅 1号棟 全2棟 神奈川県茅ヶ崎市浜之郷|5,480万円の新築一戸建て|センチュリー21富士ハウジング
| 価格 | 5,480万円値下がり ![]() |
||||
|---|---|---|---|---|---|
| 所在地 | 神奈川県茅ヶ崎市浜之郷
この地域周辺の物件を見る |
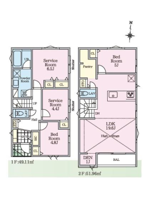
土地面積 | 98.2m² (29.7坪) | 建物面積 | 100.11m2 |
| 築年月 | 2026年4月築 | 間取り | 3SLDK (LDK18/洋室6.5/洋室5.1/S5.3/S5.1) | ||
| 交通 |
JR東海道本線 茅ケ崎 徒歩19分
JR相模線 茅ケ崎 徒歩19分 |
||||
| 特徴 |
|
|---|---|
| セールスコメント | センチュリー21富士ハウジング茅ヶ崎店は茅ヶ崎駅南口徒歩1分です |
| 採光面 | - | 構造/階数 | 木造/地上2階建 |
|---|---|---|---|
| 建ぺい率 | 60(%) | 容積率 | 200(%) |
| 駐車場 | 有 | 現況/引渡し | 建築中/相談 |
| 土地権利 | 所有権 | 私道負担面積 | - |
| 接道状況 | 接道: 南 道路幅: 4.16m 接道: 北 道路幅: 7.97m |
用途地域 |
第一種住居地域
|
| セットバック | - | 法令上の制限 | 高度地区;準防火地域 |
| 地目 | 宅地 | 地勢 | |
| 建築確認番号 | 第25KAK建確02107号 | 都市計画 | 市街化区域 |
| 取引態様 | 仲介 | ||
| 情報更新日 | 2026年04月12日 | 次回更新日 | 2026年04月26日 |
| 小学校区 | 茅ヶ崎市立鶴嶺小学校 (神奈川県茅ヶ崎市) 神奈川県茅ヶ崎市立鶴嶺小学校学区の他の物件を見る |
中学校区 | 鶴嶺中学校 (神奈川県茅ヶ崎市) 神奈川県茅ヶ崎市立鶴嶺中学校学区の他の物件を見る |
|---|
| 価格 | 万円 | ||
|---|---|---|---|
| 年利率 | % |
||
| ボーナス払い | 返済年数 | ||
| 頭金 | 直接入力する | 万円 | |

毎月のご返済額 |
ボーナス(×年2回) |
物件価格5,480万円 |
![]() |
![]() |
茅ヶ崎市浜之郷
5180万円〜5480万円 |
大容量の収納スペースで住空間もスッキリ広々 家族団らんの時間も増えそうなくつろぎのLDK 食洗機付のシステムキッチン!コミュニケーションの取りやすい対面式です。