茅ヶ崎市矢畑 中古戸建 神奈川県茅ヶ崎市矢畑|3,490万円の中古一戸建て|センチュリー21富士ハウジング
| 価格 | 3,490万円値下がり ![]() |
||||
|---|---|---|---|---|---|
| 所在地 | 神奈川県茅ヶ崎市矢畑
この地域周辺の物件を見る |
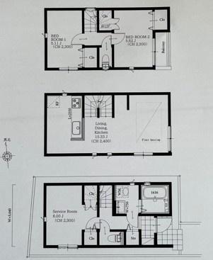
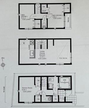
土地面積 | 66.11m² (19.99坪) | 建物面積 | 78.24m2 |
| 築年月 | 2023年11月築 | 間取り | 3LDK (-) | ||
| 交通 |
JR東海道本線 茅ケ崎 徒歩22分
JR相模線 北茅ケ崎 徒歩23分 JR相模線 茅ケ崎 徒歩22分 |
||||
| 特徴 |
|
|---|---|
| セールスコメント | 当店は湘南モールフィル1階にございます。お気軽にお立ち寄り下さいませ。 |
| 採光面 | 南西 | 構造/階数 | 木造/地上3階建 |
|---|---|---|---|
| 建ぺい率 | 60(%) | 容積率 | 200(%) |
| 駐車場 | 有 | 現況/引渡し | 居住中/相談 |
| 土地権利 | 所有権 | 私道負担面積 | - |
| 接道状況 | 接道: 東 2.7m 公道 道路幅: 4.2m | 用途地域 |
第一種住居地域
|
| セットバック | - | 法令上の制限 | - |
| 地目 | 宅地 | 地勢 | 平坦 |
| 建築確認番号 | 都市計画 | 市街化区域 | |
| 取引態様 | 専任媒介 | ||
| 情報更新日 | 2026年05月09日 | 次回更新日 | 2026年05月23日 |
| 小学校区 | 茅ヶ崎市立鶴嶺小学校 (神奈川県茅ヶ崎市) 神奈川県茅ヶ崎市立鶴嶺小学校学区の他の物件を見る |
中学校区 | 鶴嶺中学校 (神奈川県茅ヶ崎市) 神奈川県茅ヶ崎市立鶴嶺中学校学区の他の物件を見る |
|---|
| 価格 | 万円 | ||
|---|---|---|---|
| 年利率 | % |
||
| ボーナス払い | 返済年数 | ||
| 頭金 | 直接入力する | 万円 | |

毎月のご返済額 |
ボーナス(×年2回) |
物件価格3,490万円 |
【CENTURY21富士ハウジング湘南モールフィル店専任物件】