シーサイド片瀬江ノ島 神奈川県藤沢市片瀬海岸1丁目 8-21|4,199万円の中古マンション|分譲住宅や新築物件|センチュリー21富士ハウジング
| 価格 | 4,199万円 ![]() |
||||
|---|---|---|---|---|---|
| 所在地 | 神奈川県藤沢市片瀬海岸1丁目 8-21
この地域周辺の物件を見る |
専有面積 | 61.68m2 | 築年月 | 1987年8月築 |
| 交通 |
江ノ島電鉄 江ノ島 徒歩4分
小田急江ノ島線 片瀬江ノ島 徒歩7分 湘南モノレール 湘南江の島 徒歩4分 |
管理費等 | 12,300円 | 修繕積立金 | 10,490円 | 所在階/階数 | 4階/地上11階建 | バルコニー面積 | 7.08m² |
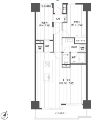
| 間取り | 2LDK (LDK18.7/洋室4.9/洋室5.5) | ||||
| 特徴 |
|
|---|---|
| セールスコメント | センチュリー21富士ハウジング藤沢店は藤沢駅北口徒歩3分、提携駐車場がございます |
| 採光面 | 南西 | 取引態様 | 仲介 |
|---|---|---|---|
| 現況 | 空室 | 引渡し | 即時 |
| 総戸数 | 78戸 | 構造 | SRC造 |
| テラス面積 | - | 専用庭面積 | - |
| 駐車場 | 空無:16,000円/月 | 駐輪場 | - |
| 建物権利 | - | 土地権利 | 所有権 |
| 用途地域 | 商業地域 - - | 管理態様 | 管理形態:日勤 管理組合:あり 管理会社:(株)穴吹コミュニティ |
| 情報更新日 | 2026年05月19日 | 次回更新日 | 2026年06月02日 |
| 小学校区 | () |
中学校区 | () |
|---|
| 価格 | 万円 | ||
|---|---|---|---|
| 年利率 | % |
||
| ボーナス払い | 返済年数 | ||
| 頭金 | 直接入力する | 万円 | |

毎月のご返済額 |
ボーナス(×年2回) |
物件価格4,199万円 |
![]() |
![]() |
藤沢市片瀬海岸1丁目 8-21
3798万円〜4380万円 |
江ノ島電鉄「江ノ島」駅徒歩4分 片瀬東浜海水浴場まで徒歩5分 陽当り良好 人気の江ノ島エリア リフォーム完了しています ぜひ一度ご覧ください