レ・ジェイド辻堂東海岸SEA-SIDE VILLA 神奈川県藤沢市辻堂東海岸4丁目|6,980万円の中古マンション|分譲住宅や新築物件|センチュリー21富士ハウジング
| 価格 | 6,980万円 ![]() |
||||
|---|---|---|---|---|---|
| 所在地 | 神奈川県藤沢市辻堂東海岸4丁目
この地域周辺の物件を見る |
専有面積 | 73.81m2 | 築年月 | 2020年2月築 |
| 交通 |
小田急江ノ島線 鵠沼海岸 徒歩18分
JR東海道本線 辻堂 バス9分 湘洋中学校前 停歩3分 |
管理費等 | 16,400円 | 修繕積立金 | 18,800円 | 所在階/階数 | 3階/地上4階建 | バルコニー面積 | 12.24m² |
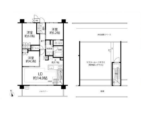
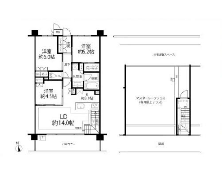
| 間取り | 3LDK (LDK17.1/洋室6/洋室5.2/洋室4.5) | ||||
| 特徴 |
|
|---|---|
| セールスコメント | 当店は湘南モールフィル1階にございます。お気軽にお立ち寄り下さいませ。 |
| 採光面 | 南 | 取引態様 | 仲介 |
|---|---|---|---|
| 現況 | 居住中 | 引渡し | 相談 |
| 総戸数 | 25戸 | 構造 | RC造 |
| テラス面積 | - | 専用庭面積 | - |
| 駐車場 | 有:4,500円/月 | 駐輪場 | 有:200円/月 |
| 建物権利 | - | 土地権利 | 所有権 |
| 用途地域 | - - - | 管理態様 | 管理形態:日勤 管理組合:あり 管理会社:伊藤忠アーバンコミュニティ |
| 情報更新日 | 2026年04月15日 | 次回更新日 | 2026年04月29日 |
| 小学校区 | () |
中学校区 | () |
|---|
| 価格 | 万円 | ||
|---|---|---|---|
| 年利率 | % |
||
| ボーナス払い | 返済年数 | ||
| 頭金 | 直接入力する | 万円 | |

毎月のご返済額 |
ボーナス(×年2回) |
物件価格6,980万円 |
![]() |
![]() |
藤沢市辻堂東海岸4丁目
5780万円〜6980万円 |
【CENTURY21富士ハウジング湘南モールフィル店取扱物件】最上階3-4階部分のためひ当り・通風良好。37平米のマスタールーフテラス付のお部屋です。