藤和江ノ島ホームズステージI 神奈川県藤沢市片瀬海岸1丁目|5,980万円の中古マンション|分譲住宅や新築物件|センチュリー21富士ハウジング

  • 藤沢店

    0120-158-380

  • 湘南モールフィル店

    0120-989-655

  • 辻堂北口店

    0120-060-021

  • 茅ヶ崎店

    0467-73-9085

中古マンション

藤和江ノ島ホームズステージI

お気に入り
価格 5,980万円値下がり ローンシミュレーション
所在地 神奈川県藤沢市片瀬海岸1丁目
この地域周辺の物件を見る
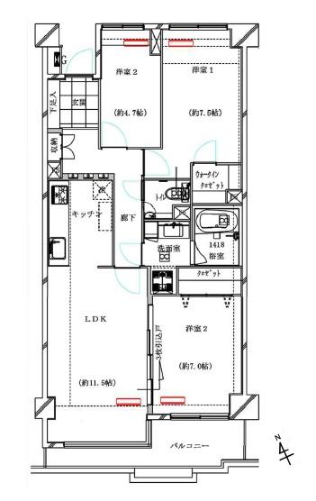
専有面積 80.79m2 築年月 1988年9月築
交通
江ノ島電鉄 江ノ島 徒歩5分
湘南モノレール 湘南江の島 徒歩5分
小田急江ノ島線 片瀬江ノ島 徒歩8分
管理費等 20,200円 修繕積立金 15,910円
所在階/階数 4階/地上5階 地下1階建 バルコニー面積 7.76m²
間取り 3LDK (LDK11.5/洋室7.5/洋室7/洋室4.7)
ここがおすすめ

【CENTURY21富士ハウジング湘南モールフィル店取扱物件】「江ノ島」駅徒歩5分。南西向き、リビング・バルコニーから海が望めます。(天候により)

お問い合わせ、資料請求、見学のお申し込みはこちらから

センチュリー21富士ハウジング 湘南モールフィル店
0120-989-655
「ホームページを見た」とお伝え下さい。

お問い合わせ番号をお伝えください
RHS-159703-34882

内見予約
お問合せ

セールスポイント

特徴
  • システムキッチン
  • 追い焚き
  • シャワー
  • 浴室乾燥機
  • ガスコンロ
  • コンロ三口
  • バルコニー
  • エレベーター
  • オートロック
  • 駐輪場
  • バイク置き場
  • ペット可
  • ペット対応
  • 本下水
  • 都市ガス
  • プライスダウン
セールスコメント 当店は湘南モールフィル1階にございます。お気軽にお立ち寄り下さいませ。

物件概要

採光面 南西 取引態様 仲介
現況 空室 引渡し 相談
総戸数 28戸 構造 RC造
テラス面積 - 専用庭面積 -
駐車場 有:18,000円/月 駐輪場 有:500円/月
建物権利 - 土地権利 所有権
用途地域 第一種住居地域 - - 管理態様 管理形態:日勤
管理組合:あり
管理会社:三菱地所コミュニティ
情報更新日 2026年05月28日 次回更新日 2026年06月11日
※各種情報と差異がある場合は現況優先となります

学区情報

小学校区
()
中学校区
()
※物件情報の学区情報について
当サイト物件情報に記載されております通学区域(学区)情報は、国土数値情報ダウンロードサービスが提供する小学校区データ【2021年度】及び中学校区データ【2021年度】を元に加工したものですので、記載情報が現在の学区域と異なる場合がございます。
国土数値情報ダウンロードサービスのWEBサイト上で記述通り、データは必ずしも正確とは言えません。また、通学区域(学区)は毎年見直しの対象となりますので、そちらを踏まえ学区情報は参考としてご活用下さい。

お問い合わせ、資料請求、見学のお申し込みはこちらから

センチュリー21富士ハウジング 湘南モールフィル店
0120-989-655
「ホームページを見た」とお伝え下さい。

お問い合わせ番号をお伝えください
RHS-159703-34882

内見予約
お問合せ

この物件でローンシミュレーションする

価格 万円
年利率
ボーナス払い 返済年数
頭金 直接入力する 万円

毎月のご返済額

ボーナス(×年2回)

物件価格

5,980万円
※返済金額はあくまでも目安です。
  • こちらの物件を見たお客様はこんな物件もチェックしています。
  • お気に入り物件

同じ価格帯の物件はこちら

広さの近い物件はこちら

同じ学区の物件はこちら

センチュリー21富士ハウジング 湘南モールフィル店
0120-989-655
「ホームページを見た」とお伝え下さい。

お問い合わせ番号をお伝えください
RHS-159703-34882

内見予約
お問合せ

お問い合わせ

  1. 1
    内容入力
  2. 2
    内容確認
  3. 3
    完了
お問合せ内容必須
【備考欄】
詳細な見学ご希望時間、ご質問、ご希望条件などがございましたらお聞かせ下さい。
(2000文字以内)
お名前必須
メールアドレス必須
※ご記入いただいたメールアドレス宛てに、お問合せ内容の確認メールをお送りいたします。
※Yahoo!メールなどのフリーメールをご利用の場合、迷惑メールフォルダに入る場合があります。
 迷惑メールのフォルダ・設定等をご確認下さい。
電話番号必須
FAX(任意)
※ご入力いただいたお客さまの個人情報は、「個人情報の取扱いについて」に基づき適正に取り扱います。必ずお読みになり、同意の上お問い合わせください。

お気軽にお問い合わせください

0120-989-655
物件番号 RHS-159703-34882
※「ホームページを見た」
とお伝え下さい。

お役立ち機能

この物件を
携帯で確認!

会員の無料登録はこちら

物件をさがす

  • 売り土地特集
  • 新着物件特集
  • 値下がり物件
  • 町名から探す
  • 学区から探す
  • 条件から探す
  • マンションカタログ
Zoomでオンライン来店 詳しくはこちら

売却について

売却イメージ画像

不動産のプロが誠実にご対応します。
不動産の売却に関するお悩みは弊社にご相談ください!

中古マンション×リフォーム

リフォームイメージ画像

中古物件購入のご提案だけでなく、ワンストップでリフォームのご相談・打ち合わせが可能です!

店舗紹介

藤沢店 売買営業部

藤沢店外観写真

0120-158-380

〒251-0052
神奈川県藤沢市藤沢484-24
10:00〜19:00
定休日:毎週火曜日、水曜日

店舗紹介

湘南モールフィル店

湘南モールフィル店外観写真

0120-989-655

〒251-0042
神奈川県藤沢市辻堂新町4丁目1-1
湘南モールフィル1階
10:00〜19:00
定休日:毎週火曜日、水曜日

店舗紹介

辻堂北口店

辻堂北口店外観写真

0120-060-021

〒251-0041
神奈川県藤沢市辻堂神台
1-3-39オザワビル1階
10:00〜19:00
定休日:毎週火曜日、水曜日

店舗紹介

茅ヶ崎店

茅ヶ崎店外観写真

0467-73-9085

〒253-0056
神奈川県茅ヶ崎市共恵1-2-18
ともえ桜ビル1階
10:00〜19:00
定休日:毎週火曜日、水曜日

店舗紹介