茅ヶ崎市南湖5期 新築分譲住宅 2号棟 全2棟 神奈川県茅ヶ崎市南湖4丁目|5,699万円の新築一戸建て|センチュリー21富士ハウジング
| 価格 | 5,699万円 ![]() |
||||
|---|---|---|---|---|---|
| 所在地 | 神奈川県茅ヶ崎市南湖4丁目
この地域周辺の物件を見る |
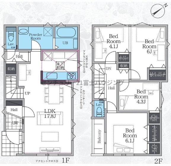
土地面積 | 104.35m² (31.56坪) | 建物面積 | 94.4m2 |
| 築年月 | 2026年7月築 | 間取り | 4LDK (LDK17.8/洋室4.1/洋室6/洋室4.3/洋室6.1) | ||
| 交通 |
JR東海道本線 茅ケ崎 徒歩18分/バス8分 南湖会館 停歩3分
JR相模線 茅ケ崎 徒歩18分/バス8分 南湖会館 停歩3分 |
||||
| 特徴 |
|
|---|---|
| セールスコメント | 富士ハウジング茅ヶ崎店は茅ヶ崎駅南口徒歩1分です |
| 採光面 | 東南 | 構造/階数 | 木造/地上2階建 |
|---|---|---|---|
| 建ぺい率 | 60(%) | 容積率 | 160(%) |
| 駐車場 | 有 | 現況/引渡し | 建築中/相談 |
| 土地権利 | 所有権 | 私道負担面積 | - |
| 接道状況 | 接道: 南 公道 道路幅: 4m | 用途地域 |
第一種中高層住居専用地域
|
| セットバック | - | 法令上の制限 | 高度地区;宅地造成工事規制区域;日影制限有 |
| 地目 | 宅地 | 地勢 | 平坦 |
| 建築確認番号 | 第25UDI1W建12936号 | 都市計画 | 市街化区域 |
| 取引態様 | 仲介 | ||
| 情報更新日 | 2026年05月09日 | 次回更新日 | 2026年05月23日 |
| 小学校区 | 茅ヶ崎市立西浜小学校 (神奈川県茅ヶ崎市) 神奈川県茅ヶ崎市立西浜小学校学区の他の物件を見る |
中学校区 | 西浜中学校 (神奈川県茅ヶ崎市) 神奈川県茅ヶ崎市立西浜中学校学区の他の物件を見る |
|---|
| 価格 | 万円 | ||
|---|---|---|---|
| 年利率 | % |
||
| ボーナス払い | 返済年数 | ||
| 頭金 | 直接入力する | 万円 | |

毎月のご返済額 |
ボーナス(×年2回) |
物件価格5,699万円 |
![]() |
![]() |
茅ヶ崎市南湖4丁目
5699万円〜5999万円 |
一日の疲れを癒す浴室は広々1坪
西浜小学校、西浜中学校まで徒歩10分
複合商業施設「ブランチ茅ヶ崎」徒歩10分で
周辺環境良好です