茅ヶ崎市富士見町1期 新築戸建1号棟 全1棟 神奈川県茅ヶ崎市富士見町|7,299万円の新築一戸建て|センチュリー21富士ハウジング

  • 藤沢店

    0120-158-380

  • 湘南モールフィル店

    0120-989-655

  • 辻堂北口店

    0120-060-021

  • 茅ヶ崎店

    0467-73-9085

TOPページ
物件検索
新築一戸建て(新築一軒家)
茅ヶ崎市
JR東海道本線
茅ヶ崎市富士見町1期 新築戸建1号棟 全1棟

新築一戸建て

茅ヶ崎市富士見町1期 新築戸建1号棟 全1棟NEW

お気に入り
価格 7,299万円 ローンシミュレーション
所在地 神奈川県茅ヶ崎市富士見町
この地域周辺の物件を見る
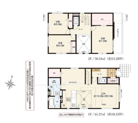
土地面積 131.39m² (39.74坪) 建物面積 111.81m2
築年月 2026年6月築 間取り 3LDK (LDK24.2/洋室7.8/洋室6/洋室5.8)
交通
JR東海道本線 辻堂 バス5分 富士見町 停歩2分
ここがおすすめ

土地面積130平米超 前面道路も広々 外シャワー付き 上部吹き抜けの開放感あふれるリビング 湘南の穏やかな潮風と緑に包まれて暮らしてみませんか

お問い合わせ、資料請求、見学のお申し込みはこちらから

センチュリー21富士ハウジング 辻堂北口店
0120-060-021
「ホームページを見た」とお伝え下さい。

お問い合わせ番号をお伝えください
RHS-159702-45006

内見予約
お問合せ

セールスポイント

特徴
  • 床暖房
  • システムキッチン
  • カウンターキッチン
  • シャワー
  • 浴室乾燥機
  • コンロ三口
  • 床下収納
  • バルコニー
  • カースペース2台
  • 本下水
  • 都市ガス
  • カースペース2台以上
  • 新着物件
セールスコメント 辻堂北口店はJR東海道線「辻堂」駅北口徒歩3分、オザワビル1階にございます。

物件概要

採光面 - 構造/階数 木造/地上2階建
建ぺい率 50(%) 容積率 100(%)
駐車場 現況/引渡し 建築中/相談
土地権利 所有権 私道負担面積 -

接道状況 接道: 北東 公道 道路幅: 6.1m 用途地域
第一種低層住居専用地域
セットバック - 法令上の制限 準防火地域;敷地面積最低限度有
地目 宅地 地勢
建築確認番号 第25UDI1W建11852号 都市計画 市街化区域
取引態様 仲介
情報更新日 2026年04月25日 次回更新日 2026年05月09日
※各種情報と差異がある場合は現況優先となります

学区情報

小学校区 茅ヶ崎市立緑が浜小学校
(神奈川県茅ヶ崎市)
神奈川県茅ヶ崎市立緑が浜小学校学区の他の物件を見る
中学校区 松浪中学校
(神奈川県茅ヶ崎市)
神奈川県茅ヶ崎市立松浪中学校学区の他の物件を見る
※物件情報の学区情報について
当サイト物件情報に記載されております通学区域(学区)情報は、国土数値情報ダウンロードサービスが提供する小学校区データ【2021年度】及び中学校区データ【2021年度】を元に加工したものですので、記載情報が現在の学区域と異なる場合がございます。
国土数値情報ダウンロードサービスのWEBサイト上で記述通り、データは必ずしも正確とは言えません。また、通学区域(学区)は毎年見直しの対象となりますので、そちらを踏まえ学区情報は参考としてご活用下さい。

お問い合わせ、資料請求、見学のお申し込みはこちらから

センチュリー21富士ハウジング 辻堂北口店
0120-060-021
「ホームページを見た」とお伝え下さい。

お問い合わせ番号をお伝えください
RHS-159702-45006

内見予約
お問合せ

この物件でローンシミュレーションする

価格 万円
年利率
ボーナス払い 返済年数
頭金 直接入力する 万円

毎月のご返済額

ボーナス(×年2回)

物件価格

7,299万円
※返済金額はあくまでも目安です。

こちらの物件は複数区画の分譲地や他にも販売中の物件があります。

神奈川県茅ヶ崎市富士見町の新築一戸建ての現地外観写真 神奈川県茅ヶ崎市富士見町の新築一戸建ての間取り図
茅ヶ崎市富士見町
7299万円
  • こちらの物件を見たお客様はこんな物件もチェックしています。
  • お気に入り物件

センチュリー21富士ハウジング 辻堂北口店
0120-060-021
「ホームページを見た」とお伝え下さい。

お問い合わせ番号をお伝えください
RHS-159702-45006

内見予約
お問合せ

お問い合わせ

  1. 1
    内容入力
  2. 2
    内容確認
  3. 3
    完了
お問合せ内容必須
【備考欄】
詳細な見学ご希望時間、ご質問、ご希望条件などがございましたらお聞かせ下さい。
(2000文字以内)
お名前必須
メールアドレス必須
※ご記入いただいたメールアドレス宛てに、お問合せ内容の確認メールをお送りいたします。
※Yahoo!メールなどのフリーメールをご利用の場合、迷惑メールフォルダに入る場合があります。
 迷惑メールのフォルダ・設定等をご確認下さい。
電話番号必須
FAX(任意)
※ご入力いただいたお客さまの個人情報は、「個人情報の取扱いについて」に基づき適正に取り扱います。必ずお読みになり、同意の上お問い合わせください。

お気軽にお問い合わせください

0120-060-021
物件番号 RHS-159702-45006
※「ホームページを見た」
とお伝え下さい。

お役立ち機能

この物件を
携帯で確認!

会員の無料登録はこちら

物件をさがす

  • 売り土地特集
  • 新着物件特集
  • 値下がり物件
  • 町名から探す
  • 学区から探す
  • 条件から探す
  • マンションカタログ
Zoomでオンライン来店 詳しくはこちら

売却について

売却イメージ画像

不動産のプロが誠実にご対応します。
不動産の売却に関するお悩みは弊社にご相談ください!

中古マンション×リフォーム

リフォームイメージ画像

中古物件購入のご提案だけでなく、ワンストップでリフォームのご相談・打ち合わせが可能です!

店舗紹介

藤沢店 売買営業部

藤沢店外観写真

0120-158-380

〒251-0052
神奈川県藤沢市藤沢484-24
10:00〜19:00
定休日:毎週火曜日、水曜日

店舗紹介

湘南モールフィル店

湘南モールフィル店外観写真

0120-989-655

〒251-0042
神奈川県藤沢市辻堂新町4丁目1-1
湘南モールフィル1階
10:00〜19:00
定休日:毎週火曜日、水曜日

店舗紹介

辻堂北口店

辻堂北口店外観写真

0120-060-021

〒251-0041
神奈川県藤沢市辻堂神台
1-3-39オザワビル1階
10:00〜19:00
定休日:毎週火曜日、水曜日

店舗紹介

茅ヶ崎店

茅ヶ崎店外観写真

0467-73-9085

〒253-0056
神奈川県茅ヶ崎市共恵1-2-18
ともえ桜ビル1階
10:00〜19:00
定休日:毎週火曜日、水曜日

店舗紹介