ヴェレーナ茅ヶ崎海岸 神奈川県茅ヶ崎市汐見台|4,580万円の中古マンション|分譲住宅や新築物件|センチュリー21富士ハウジング
| 価格 | 4,580万円 ![]() |
||||
|---|---|---|---|---|---|
| 所在地 | 神奈川県茅ヶ崎市汐見台
この地域周辺の物件を見る |
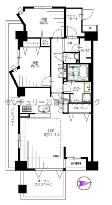
専有面積 | 75.25m2 | 築年月 | 2008年10月築 |
| 交通 |
JR東海道本線 辻堂 バス9分 茅ヶ崎学園入口 停歩2分
|
管理費等 | 15,200円 | 修繕積立金 | 19,870円 | 所在階/階数 | 3階/地上5階建 | バルコニー面積 | 11.88m² |
| 間取り | 2LDK (LDK21.1/洋室6/洋室5.6) | ||||
| 特徴 |
|
|---|---|
| セールスコメント | 富士ハウジング茅ヶ崎店は茅ヶ崎駅南口徒歩1分です |
| 採光面 | 南 | 取引態様 | 仲介 |
|---|---|---|---|
| 現況 | 居住中 | 引渡し | 相談 |
| 総戸数 | 66戸 | 構造 | RC造 |
| テラス面積 | - | 専用庭面積 | - |
| 駐車場 | 有 | 駐輪場 | 有 |
| 建物権利 | - | 土地権利 | 所有権 |
| 用途地域 | - - - | 管理態様 | 管理形態:日勤 管理組合:なし 管理会社:大和地所コミュニティライフ株式会社 |
| 情報更新日 | 2025年11月04日 | 次回更新日 | 2025年11月18日 |
| 小学校区 | 茅ヶ崎市立汐見台小学校 (神奈川県茅ヶ崎市) 神奈川県茅ヶ崎市立汐見台小学校学区の他の物件を見る |
中学校区 | 松浪中学校 (神奈川県茅ヶ崎市) 神奈川県茅ヶ崎市立松浪中学校学区の他の物件を見る |
|---|
| 価格 | 万円 | ||
|---|---|---|---|
| 年利率 | % |
||
| ボーナス払い | 返済年数 | ||
| 頭金 | 直接入力する | 万円 | |

毎月のご返済額 |
ボーナス(×年2回) |
物件価格4,580万円 |
![]() |
![]() |
茅ヶ崎市汐見台
4580万円〜5299万円 |
21畳超の広々リビングは自然とご家族が集まる空間
リフォーム工事完了
システムキッチン、バスユニットも新品に入れ替え
ペットと一緒に快適新生活をスタート