茅ヶ崎市浜須賀2期 新築戸建 3号棟 全4棟 神奈川県茅ヶ崎市浜須賀|5,790万円の新築一戸建て|センチュリー21富士ハウジング
| 価格 | 5,790万円 ![]() |
||||
|---|---|---|---|---|---|
| 所在地 | 神奈川県茅ヶ崎市浜須賀
この地域周辺の物件を見る |
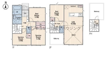
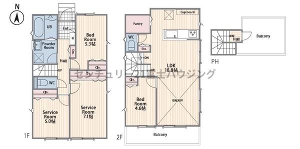
土地面積 | 118.3m² (35.78坪) | 建物面積 | 99.15m2 |
| 築年月 | 2025年11月築 | 間取り | 1SLDK (S5/S7.1/洋室5.3/LDK18.8/洋室4.6) | ||
| 交通 |
JR東海道本線 辻堂 バス10分 平和町 停歩5分
|
||||
| 特徴 |
|
|---|---|
| セールスコメント | 富士ハウジング茅ヶ崎店は茅ヶ崎駅南口徒歩1分です |
| 採光面 | 南 | 構造/階数 | 木造/地上2階建 |
|---|---|---|---|
| 建ぺい率 | 50(%) | 容積率 | 100(%) |
| 駐車場 | 有 | 現況/引渡し | 建築中/相談 |
| 土地権利 | 所有権 | 私道負担面積 | - |
| 接道状況 | 接道: 北西 私道 道路幅: 4.2m | 用途地域 |
第一種低層住居専用地域
|
| セットバック | - | 法令上の制限 | 準防火地域 |
| 地目 | 宅地 | 地勢 | 平坦 |
| 建築確認番号 | 第25KAK建確01091号 | 都市計画 | 市街化区域 |
| 取引態様 | 仲介 | ||
| 情報更新日 | 2025年11月04日 | 次回更新日 | 2025年11月18日 |
| 小学校区 | 茅ヶ崎市立緑が浜小学校 (神奈川県茅ヶ崎市) 神奈川県茅ヶ崎市立緑が浜小学校学区の他の物件を見る |
中学校区 | 浜須賀中学校 (神奈川県茅ヶ崎市) 神奈川県茅ヶ崎市立浜須賀中学校学区の他の物件を見る |
|---|
| 価格 | 万円 | ||
|---|---|---|---|
| 年利率 | % |
||
| ボーナス払い | 返済年数 | ||
| 頭金 | 直接入力する | 万円 | |

毎月のご返済額 |
ボーナス(×年2回) |
物件価格5,790万円 |
![]() |
![]() |
茅ヶ崎市浜須賀
5690万円〜5990万円 |
お子様をいつも身近に感じられる近さが安心の緑が浜小学校(550m)
広々バルコニー付き
夜は一転、落ち着いた夜景を楽しむこともでき、バルコニーへ出る楽しみも増えます