茅ヶ崎市今宿4期 新築分譲住宅 1号棟 全2棟 神奈川県茅ヶ崎市今宿|4,699万円の新築一戸建て|センチュリー21富士ハウジング
| 価格 | 4,699万円 ![]() |
||||
|---|---|---|---|---|---|
| 所在地 | 神奈川県茅ヶ崎市今宿
この地域周辺の物件を見る |
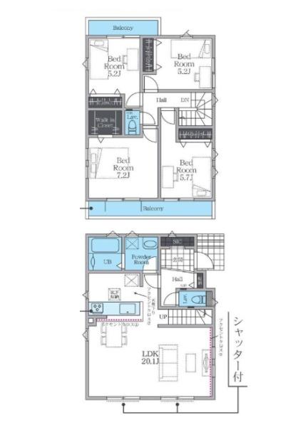
土地面積 | 105.13m² (31.8坪) | 建物面積 | 102.27m2 |
| 築年月 | 2026年2月築 | 間取り | 4LDK (LDK20.1/洋室7.2/洋室5.7/洋室5.2/洋室5.2) | ||
| 交通 |
JR東海道本線 茅ケ崎 バス9分 今宿 停歩7分
JR相模線 茅ケ崎 バス9分 今宿 停歩7分 |
||||
| 特徴 |
|
|---|---|
| セールスコメント | センチュリー21富士ハウジング茅ヶ崎店は茅ヶ崎駅南口徒歩1分です |
| 採光面 | - | 構造/階数 | 木造/地上2階建 |
|---|---|---|---|
| 建ぺい率 | 60(%) | 容積率 | 200(%) |
| 駐車場 | 有 | 現況/引渡し | 新築/相談 |
| 土地権利 | 所有権 | 私道負担面積 | - |
| 接道状況 | 接道: 東南 公道 道路幅: 4m 接道: 北東 公道 道路幅: 4.5m 接道: 北東 道路幅: 4.5m 接道: 私道 |
用途地域 |
第一種中高層住居専用地域
|
| セットバック | - | 法令上の制限 | 高度地区;準防火地域 |
| 地目 | 宅地 | 地勢 | 平坦 |
| 建築確認番号 | 第25UDI1W建07824号 | 都市計画 | 市街化区域 |
| 取引態様 | 仲介 | ||
| 情報更新日 | 2026年03月09日 | 次回更新日 | 2026年03月23日 |
| 小学校区 | 茅ヶ崎市立今宿小学校 (神奈川県茅ヶ崎市) 神奈川県茅ヶ崎市立今宿小学校学区の他の物件を見る |
中学校区 | 萩園中学校 (神奈川県茅ヶ崎市) 神奈川県茅ヶ崎市立萩園中学校学区の他の物件を見る |
|---|
| 価格 | 万円 | ||
|---|---|---|---|
| 年利率 | % |
||
| ボーナス払い | 返済年数 | ||
| 頭金 | 直接入力する | 万円 | |

毎月のご返済額 |
ボーナス(×年2回) |
物件価格4,699万円 |
![]() |
![]() |
茅ヶ崎市今宿
4699万円〜4899万円 |
閑静な住宅地で小さなお子様がいるご家族にも安心 三方向からたっぷりの陽光と心地よい風が舞い込む住まい 約20帖の広々LDKは自然とご家族が集まる空間