茅ヶ崎市中島第15 新築分譲住宅 1号棟 全1棟 神奈川県茅ヶ崎市中島|2,980万円の新築一戸建て|センチュリー21富士ハウジング
| 価格 | 2,980万円 ![]() |
||||
|---|---|---|---|---|---|
| 所在地 | 神奈川県茅ヶ崎市中島
この地域周辺の物件を見る |
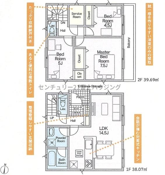
土地面積 | 81.42m² (24.62坪) | 建物面積 | 77.76m2 |
| 築年月 | 2026年7月築 | 間取り | 3SLDK (LDK14.5/洋室4.5/洋室7.5/洋室5) | ||
| 交通 |
JR東海道本線 茅ケ崎 徒歩40分/バス10分 新田入口 停歩3分
JR相模線 茅ケ崎 徒歩40分/バス10分 新田入口 停歩3分 |
||||
| 特徴 |
|
|---|---|
| セールスコメント | 富士ハウジング茅ヶ崎店は茅ヶ崎駅南口徒歩1分です |
| 採光面 | 南 | 構造/階数 | 木造/地上2階建 |
|---|---|---|---|
| 建ぺい率 | 60(%) | 容積率 | 160(%) |
| 駐車場 | 有 | 現況/引渡し | 建築中/相談 |
| 土地権利 | 所有権 | 私道負担面積 | - |
| 接道状況 | 接道: 北 9.8m 私道 道路幅: 2.9m | 用途地域 |
第一種住居地域
|
| セットバック | - | 法令上の制限 | 準防火地域 |
| 地目 | 宅地 | 地勢 | |
| 建築確認番号 | 第KBI-SGM26-10-0589号 | 都市計画 | 市街化区域 |
| 取引態様 | 一般媒介 | ||
| 情報更新日 | 2026年05月11日 | 次回更新日 | 2026年05月25日 |
| 小学校区 | 茅ヶ崎市立柳島小学校 (神奈川県茅ヶ崎市) 神奈川県茅ヶ崎市立柳島小学校学区の他の物件を見る |
中学校区 | 中島中学校 (神奈川県茅ヶ崎市) 神奈川県茅ヶ崎市立中島中学校学区の他の物件を見る |
|---|
| 価格 | 万円 | ||
|---|---|---|---|
| 年利率 | % |
||
| ボーナス払い | 返済年数 | ||
| 頭金 | 直接入力する | 万円 | |

毎月のご返済額 |
ボーナス(×年2回) |
物件価格2,980万円 |
![]() |
![]() |
茅ヶ崎市中島
2980万円 |
閑静な住宅地で小さなお子様がいるご家族にも安心
浴室乾燥機付でいつも快適バスタイム
お子様のお留守番にも安心、訪問者を確認できるTVモニタ・インタホン付き