茅ヶ崎市浜須賀2期 新築戸建 4号棟 全4棟 神奈川県茅ヶ崎市浜須賀|4,890万円の新築一戸建て|センチュリー21富士ハウジング
| 価格 | 4,890万円 ![]() |
||||
|---|---|---|---|---|---|
| 所在地 | 神奈川県茅ヶ崎市浜須賀
この地域周辺の物件を見る |
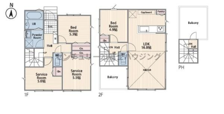
土地面積 | 110m² (33.27坪) | 建物面積 | 93.78m2 |
| 築年月 | 2025年11月築 | 間取り | 2SLDK (S5/S5.5/洋室5.3/LDK16.8/洋室4.9) | ||
| 交通 |
JR東海道本線 辻堂 バス10分 平和町 停歩5分
|
||||
| 特徴 |
|
|---|---|
| セールスコメント | 辻堂北口店はJR東海道線「辻堂」駅北口徒歩3分、オザワビル1階にございます。 |
| 採光面 | 南 | 構造/階数 | 木造/地上2階建 |
|---|---|---|---|
| 建ぺい率 | 50(%) | 容積率 | 100(%) |
| 駐車場 | 有 | 現況/引渡し | 新築/相談 |
| 土地権利 | 所有権 | 私道負担面積 | - |
| 接道状況 | 接道: 北 私道 道路幅: 4.2m | 用途地域 |
第一種低層住居専用地域
|
| セットバック | - | 法令上の制限 | 準防火地域 |
| 地目 | 宅地 | 地勢 | 平坦 |
| 建築確認番号 | 第25KAK建確01092号 | 都市計画 | 市街化区域 |
| 取引態様 | 仲介 | ||
| 情報更新日 | 2026年05月16日 | 次回更新日 | 2026年05月30日 |
| 小学校区 | 茅ヶ崎市立緑が浜小学校 (神奈川県茅ヶ崎市) 神奈川県茅ヶ崎市立緑が浜小学校学区の他の物件を見る |
中学校区 | 浜須賀中学校 (神奈川県茅ヶ崎市) 神奈川県茅ヶ崎市立浜須賀中学校学区の他の物件を見る |
|---|
| 価格 | 万円 | ||
|---|---|---|---|
| 年利率 | % |
||
| ボーナス払い | 返済年数 | ||
| 頭金 | 直接入力する | 万円 | |

毎月のご返済額 |
ボーナス(×年2回) |
物件価格4,890万円 |
![]() |
![]() |
茅ヶ崎市浜須賀
4690万円〜5190万円 |
湘南の海とともに暮らす日々
ルーフバルコニーからは海や富士山を一望し、夏には花火大会を楽しめる特別なロケーション
スーパーやドラッグストア、小中学校も徒歩10分圏内